Valutazione immobiliare indipendente, accurata e gratuita
Appartamento in vendita a Cervia a 219.000 € (cod.64ce9e94)
Caasa non ha sufficienti informazioni per commentare l'appartamento in vendita a Cervia - 64ce9e94.
Analisi immobiliare
I dati in posseso di Caasa per quest'immobile sono insufficienti, inaffidabili o contraddittori per proporre un'analisi attendibile.
Mercato immobiliare a Cervia
Per quanto riguarda più in generale la città di Cervia, sono presenti al momento ben oltre 2.000 annunci per
appartamenti in vendita (meno di un terzo dell'intera provincia)
e il maggior numero di annunci per questa tipologia sono relativi alla zona di Milano Marittima.
Per quanto riguarda la dinamica dei prezzi, negli ultimi 6 mesi i prezzi medi in tutta la città per appartamenti in vendita sono
in debole aumento (+1,69%).
NOVITÀ Il risultato che vedi dipende dai dati che siamo riusciti ad estrarre dall'annuncio: ottieni una stima più accuranta di questo immobile, inserendo dati più precisi.
N.B. L'Opinione di Caasa® è un servizio sperimentale realizzato tramite tecniche di Intelligenza Artificiale, fornito senza alcuna garanzia di correttezza e completezza. Leggi il disclaimer o segnalaci un problema.
IMMAGINI
IN SINTESI
PROPOSTO DA:
Romagna Case Cervia - Milano Marittima
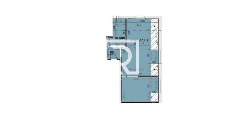
DESCRIZIONE
di recente ristrutturazione con posto auto di recente ristrutturazione
CERVIA - VIALE ITALIA Sognate una casa al mare per trascorrere momenti indimenticabili? Allora non perdete questa imperdibile opportunità a Cervia! Romagna Case propone in vendita un luminoso appartamento in posizione strategica in Viale Italia, a pochi passi dalla spiaggia e dal rinomato Bagno Fantini. Situato al secondo piano l'appartamento si compone di: Zona living con cucina a vista, bagno finestrato completo di box doccia e una camera da letto luminosa e confortevole. Possibilità di acquistare a parte un posto auto. L'appartamento, ristrutturato recentemente, si presenta in ottime condizioni ed è dotato di tutti i comfort, tra cui aria condizionata. Per qualsiasi informazione o per fissare una visita sul posto chiama Sara: 3662611752 - 05441672380 oppure manda una email a s.zoffoli@romagnacase.it e verrai ricontattato appena possibile



