Valutazione immobiliare indipendente, accurata e gratuita
Terreno agricolo in vendita ad Alfonsine (cod.659726be)
Caasa non ha sufficienti informazioni per commentare il terreno agricolo in vendita ad Alfonsine - 659726be.
Analisi immobiliare
I dati in posseso di Caasa per quest'immobile sono insufficienti, inaffidabili o contraddittori per proporre un'analisi attendibile.
Mercato immobiliare ad Alfonsine
Per quanto riguarda più in generale il comune di Alfonsine, sono presenti al momento più di venti annunci per
terreni agricoli in vendita (meno del 5% dell'intera provincia) .
Vedi altre informazioni direttamente su
Mercato-Immobiliare.info
NOVITÀ Il risultato che vedi dipende dai dati che siamo riusciti ad estrarre dall'annuncio: ottieni una stima più accuranta di questo immobile, inserendo dati più precisi.
N.B. L'Opinione di Caasa® è un servizio sperimentale realizzato tramite tecniche di Intelligenza Artificiale, fornito senza alcuna garanzia di correttezza e completezza. Leggi il disclaimer o segnalaci un problema.
IMMAGINI
IN SINTESI
DESCRIZIONE
di recente costruzione con balcone in asta giudiziaria
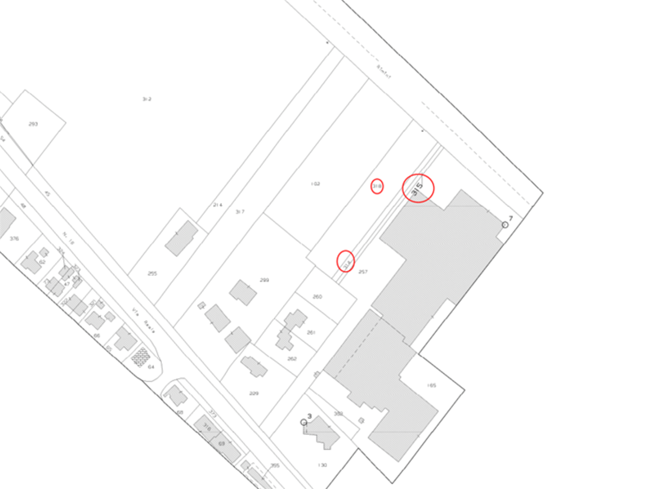
NUOVA PROPOSTA Trattasi di tre terreni situati nel comune di Alfonsine (RA), in Via Reale, di forma rettangolare e con superfici rispettivamente di 235 mq, 405 mq e 2.360 mq, per una superficie complessiva di circa 3.000 mq. L'accessibilità e la vici […]
