Valutazione immobiliare indipendente, accurata e gratuita
Appartamento in vendita a Rottofreno a 135.000 € (cod.659f9d45)
Caasa non ha sufficienti informazioni per commentare l'appartamento in vendita a Rottofreno - 659f9d45.
Analisi immobiliare
I dati in posseso di Caasa per quest'immobile sono insufficienti, inaffidabili o contraddittori per proporre un'analisi attendibile.
Mercato immobiliare a Rottofreno
Per quanto riguarda più in generale il comune di Rottofreno, sono presenti al momento più di 150 annunci per
appartamenti in vendita (meno del 5% dell'intera provincia) .
Relativamente alla dinamica dei prezzi, possiamo dire che negli ultimi 6 mesi i prezzi medi in tutto il comune per appartamenti in vendita sono
sostanzialmente stabili (+1,21%).
NOVITÀ Il risultato che vedi dipende dai dati che siamo riusciti ad estrarre dall'annuncio: ottieni una stima più accuranta di questo immobile, inserendo dati più precisi.
N.B. L'Opinione di Caasa® è un servizio sperimentale realizzato tramite tecniche di Intelligenza Artificiale, fornito senza alcuna garanzia di correttezza e completezza. Leggi il disclaimer o segnalaci un problema.
IMMAGINI
IN SINTESI
PROPOSTO DA:
Leonardo Studio immobiliare di Sandro Camisa
Via della conciliazione, 45/a, Piacenza (PC)
Verificata da Caasa®
DESCRIZIONE
con posto auto con cantina con terrazza con balcone
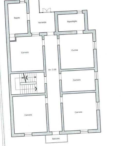
Nel centro del paese in immobile costituito da sole 3 unità, proponiamo ampio appartamento posto al primo piano. L'immobile risulta di circa 180 metri quadrati e si compone da ampia cucina con ripostiglio/dispensa collegato, salone, tre camere da let […]
