Valutazione immobiliare indipendente, accurata e gratuita
Casa indipendente in vendita a Piacenza in zona Pittolo a 440.000 € (cod.648ef55a)
Caasa non ha sufficienti informazioni per commentare la casa indipendente a Piacenza in zona Pittolo - 648ef55a.
	Analisi immobiliare
	
	I dati in posseso di Caasa per quest'immobile sono insufficienti, inaffidabili o contraddittori per proporre un'analisi attendibile.
	
	Mercato immobiliare a Piacenza
	
	Per quanto riguarda più in generale la città di Piacenza, sono presenti al momento ben oltre mille annunci per 
		case indipendenti in vendita (meno di un terzo dell'intera provincia) 
	
	 e il maggior numero di annunci per questa tipologia sono relativi alla zona di Centro Storico, mentre la zona di Pittolo risulta molto meno attiva considerando il numero di annunci presenti.
	
	
	La richiesta media nella zona dove sorge la casa indipendente (Pittolo) è pari a 
		1.790 €/m², molto vicina ai valori della zona Besurica che sono i più alti della città .
	
	
	Possiamo inoltre considerare che in tutta la città negli ultimi 6 mesi, i prezzi per case indipendenti in vendita sono 
		sostanzialmente stabili (+0,63%).
	
	
	
NOVITÀ Il risultato che vedi dipende dai dati che siamo riusciti ad estrarre dall'annuncio: ottieni una stima più accuranta di questo immobile, inserendo dati più precisi.
N.B. L'Opinione di Caasa® è un servizio sperimentale realizzato tramite tecniche di Intelligenza Artificiale, fornito senza alcuna garanzia di correttezza e completezza. Leggi il disclaimer o segnalaci un problema.
IMMAGINI
IN SINTESI
PROPOSTO DA:
HOME IMMOBILIARE DI MARCO GHIONI
DESCRIZIONE
di nuova costruzione con cantina con posto auto con termocondizionamento con giardino di nuova costruzione
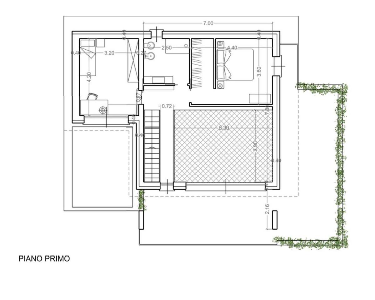
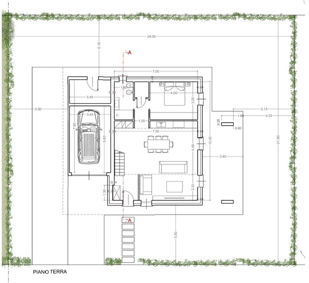
LA VERZA PITTOLO ALLE PORTE DELLA CITTA’ VENDESI VILLA INDIPENDENTE NUOVA COSTRUZIONE €440.000 Scopri questa splendida villa indipendente sui 4 lati, situata su un lotto recintato di 500 mq, con accesso diretto dalla strada pubblica. L'ingresso pedonale e carraio scoperti conducono a un incantevole giardino anteriore con vialetto pavimentato, perfetto per accogliere i tuoi ospiti. La villa, di nuova costruzione, offre finiture personalizzabili di alto capitolato e una garantendo il massimo del comfort e dell'efficienza energetica. All'interno, al piano terra, troverai un grande soggiorno a doppia altezza che si apre su un porticato esterno, ideale per momenti di relax all'aria aperta. La cucina a vista è perfetta per chi ama cucinare e intrattenere. Completa il piano terra una camera da letto matrimoniale, un bagno e un ripostiglio. Al primo piano, due ulteriori camere da letto e un secondo bagno offrono spazio e privacy per tutta la famiglia. Questa villa è dotata di un ampio box e posto auto, locale tecnico, impianto fotovoltaico e riscaldamento a pompa di calore/freddo-caldo, rendendola una scelta ecologica e sostenibile. La posizione immersa nel verde offre tranquillità e serenità, pur essendo ben collegata ai servizi principali. Inoltre, l'immobile è adatto per persone con mobilità ridotta, garantendo accessibilità a tutti. Non perdere l'opportunità di vivere in una casa nuova, che combina eleganza, comfort e sostenibilità. Riferimento annuncio CC 12092 Chiama subito per maggiori informazioni e per prenotare una visita HOME IMMOBILIARE Trovare casa senza spostarsi da casa
                              
                              
                              
                              
                              
                              
                              
                              
                              
                              
                              
                              
                              
                              
                              


