Valutazione immobiliare indipendente, accurata e gratuita
Casa indipendente in vendita a Ferriere a 95.000 € (cod.6540012b)
Caasa non ha sufficienti informazioni per commentare la casa indipendente in vendita a Ferriere - 6540012b.
Analisi immobiliare
I dati in posseso di Caasa per quest'immobile sono insufficienti, inaffidabili o contraddittori per proporre un'analisi attendibile.
Mercato immobiliare a Ferriere
Per quanto riguarda più in generale il comune di Ferriere, sono presenti al momento più di cinquanta annunci per
case indipendenti in vendita (meno del 5% dell'intera provincia) .
La dinamica dei prezzi in tutto il comune mostra che negli ultimi 6 mesi, i prezzi per case indipendenti in vendita sono
in forte calo (-18,10%).
NOVITÀ Il risultato che vedi dipende dai dati che siamo riusciti ad estrarre dall'annuncio: ottieni una stima più accuranta di questo immobile, inserendo dati più precisi.
N.B. L'Opinione di Caasa® è un servizio sperimentale realizzato tramite tecniche di Intelligenza Artificiale, fornito senza alcuna garanzia di correttezza e completezza. Leggi il disclaimer o segnalaci un problema.
IMMAGINI
IN SINTESI
PROPOSTO DA:
Immobiliare 7 VALLI di Giampiero Mori
DESCRIZIONE
di recente ristrutturazione con cantina con posto auto con terrazza con garage con giardino con termocondizionamento di recente ristrutturazione con cucina abitabile da ristrutturare
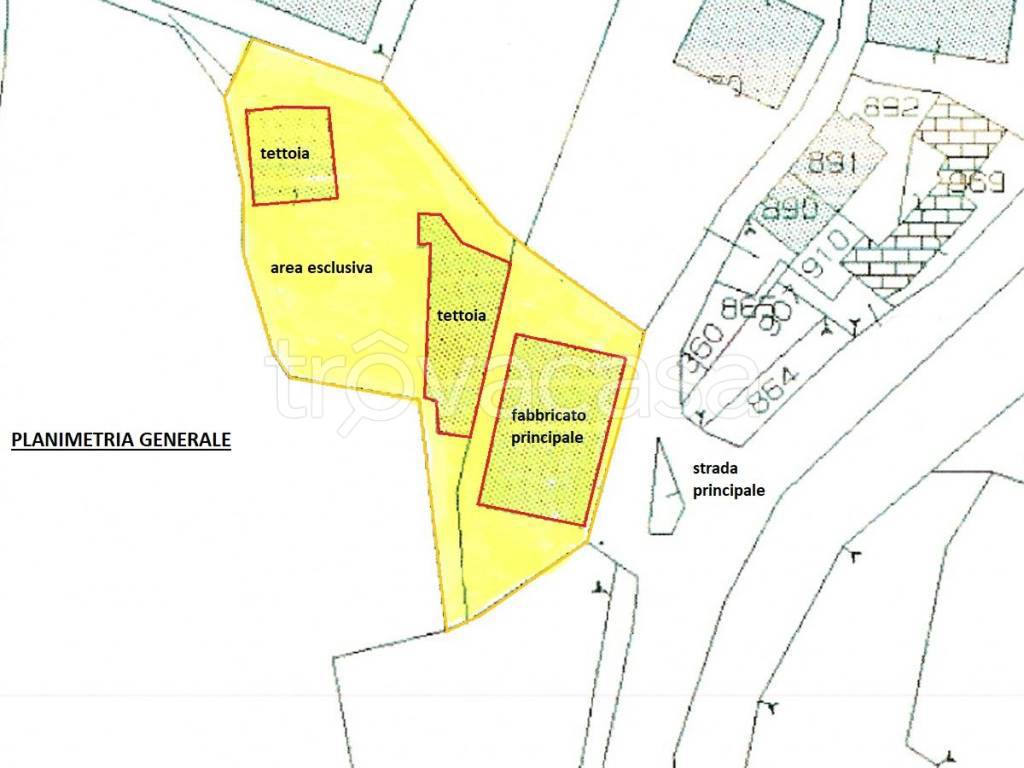
Rif. 532FR, Alta Val Nure, a pochi minuti dal paese di Ferriere, altitudine 750 m. s. l. m., in posizione alta e panoramica sulle valli circostanti con vista Fiume Nure, proponiamo ampio fabbricato che in origine ospitava un albergo ristorante con annessa area esterna e tettoie. La proprietà è completamente indipendente e recintabile. Il fabbricato principale si sviluppa su 4 piani fuori terra, ha una metratura di 480 mq totali ed è così suddiviso: Piano terreno: atrio ingresso, ampio salone, zona bar, cucina con forno a legna ed un disimpegno che conduce a 3 ampi locali a uso cantina. Esternamente è poi presente il bagno di servizio ed un piccolo locale ad uso ripostiglio. Accanto ai locali ad uso cantina si sviluppa inoltre uno spazioso garage di 72 mq totali, collegato internamente con i locali del piano terreno. Il piano primo è interamente adibito a zona camere in quanto, in origine, nel fabbricato si svolgeva un'attività ristorativa ed alberghiera. Le camere sono in totale 5, ognuna con un lavabo di servizio interno. Sono poi presenti due ampi bagni, una zona ad uso cucina ed un panoramico terrazzo, una parte di esso verandato. Il piano secondo presenta anch'esso 5 ampie camere, un comodo ripostiglio, un ampio bagno ed una cucina abitabile. Il piano terzo è interamente adibito a sottotetto. L'epoca di realizzo del fabbricato risale circa agli anni '60. L'immobile necessita di essere ristrutturato in quanto disabitato da anni. Impianti, pavimenti e finiture interne sono dell'epoca. Strutturalmente l'immobile è solido, le murature perimetrali sono in sasso e mattoni. Il riscaldamento è tramite termostufa a legna e radiatori in ghisa. L'impianto è da rifare. I serramenti del piano terreno sono in pvc con doppio vetro, tapparelle esterne e inferiate, mentre quelli dei piani superiori sono in legno con vetro semplice. A completare la proprietà sono poi presenti due ampie tettoie di 265 mq totali, insistenti sul terreno di proprietà. Questi fabbricati si trovano in pessime condizioni manutentive. Il terre[…]

