Valutazione immobiliare indipendente, accurata e gratuita
Casa indipendente in vendita a Bobbio in zona Piancasale a 175.000 € (cod.65a01553)
Caasa non ha sufficienti informazioni per commentare la casa indipendente a Bobbio in zona Piancasale - 65a01553.
Analisi immobiliare
I dati in posseso di Caasa per quest'immobile sono insufficienti, inaffidabili o contraddittori per proporre un'analisi attendibile.
Mercato immobiliare a Bobbio
Per quanto riguarda più in generale il comune di Bobbio, sono presenti al momento più di cento annunci per
case indipendenti in vendita (meno del 5% dell'intera provincia)
e il maggior numero di annunci per questa tipologia sono relativi alla zona di Mezzano Scotti, mentre la zona di Piancasale risulta molto meno attiva considerando il numero di annunci presenti.
La richiesta media nella zona dove sorge la casa indipendente (Piancasale) è pari a
890 €/m², di poco superiore al valore della zona Mezzano Scotti che è la più economica del comune .
La dinamica dei prezzi in tutto il comune mostra che negli ultimi 6 mesi, i prezzi per case indipendenti in vendita sono
in sostanziale aumento (+7,17%).
Invece i prezzi per la zona di sono in sostanziale calo.
NOVITÀ Il risultato che vedi dipende dai dati che siamo riusciti ad estrarre dall'annuncio: ottieni una stima più accuranta di questo immobile, inserendo dati più precisi.
N.B. L'Opinione di Caasa® è un servizio sperimentale realizzato tramite tecniche di Intelligenza Artificiale, fornito senza alcuna garanzia di correttezza e completezza. Leggi il disclaimer o segnalaci un problema.
IMMAGINI
IN SINTESI
PROPOSTO DA:
Immobiliare Sviluppo Casa di Peveri Gabriella
Via San Lorenzo, Bobbio (PC)
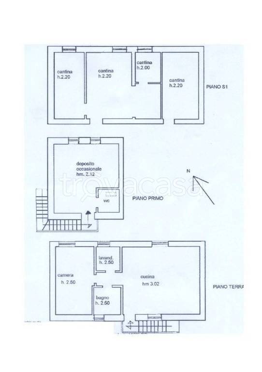
DESCRIZIONE
Bobbio a 2 Km. ( in loc. Piancasale ). Proprietà composta da due fabbricati d’abitazione, depositi, tettoia e terreno accorpato per complessivi 40000 metri quadri, suddivisi tra prati, boschi e seminativi, posti in dolce declivio e circondati dal tipico paesaggio della collina piacentina. L’ottima esposizione consente di reimpiantare vigneti, presenti fino al decennio scorso. Ottima soluzione per avviare azienda agricola/ vitivinicola/allevamenti/ agriturismo/B&B/ in un territorio di incontrastata bellezza ( vicinissima al Trebbia ) Immobiliare Sviluppo Casa Via San Lorenzo 4 29022 Bobbio Pc


