Valutazione immobiliare indipendente, accurata e gratuita

Casa indipendente in vendita a Bobbio in zona Mezzano Scotti a 17.770 € (cod.64e246f8)

Caasa non ha sufficienti informazioni per commentare la casa indipendente a Bobbio in zona Mezzano Scotti - 64e246f8.

Analisi immobiliare
I dati in posseso di Caasa per quest'immobile sono insufficienti, inaffidabili o contraddittori per proporre un'analisi attendibile.
Mercato immobiliare a Bobbio
Per quanto riguarda più in generale il comune di Bobbio, sono presenti al momento più di cento annunci per case indipendenti in vendita (meno del 5% dell'intera provincia) e il maggior numero di annunci per questa tipologia sono relativi proprio alla zona di Mezzano Scotti.
La richiesta media nella zona dove sorge la casa indipendente (Mezzano Scotti) è pari a 600 €/m² che la rende la più economica del comune .
Per quanto riguarda la dinamica dei prezzi, negli ultimi 6 mesi i prezzi medi in tutto il comune per case indipendenti in vendita sono sostanzialmente stabili (+0,76%).
Invece i prezzi per la zona di sono in calo.

NOVITÀ Il risultato che vedi dipende dai dati che siamo riusciti ad estrarre dall'annuncio: ottieni una stima più accuranta di questo immobile, inserendo dati più precisi.

N.B. L'Opinione di Caasa® è un servizio sperimentale realizzato tramite tecniche di Intelligenza Artificiale, fornito senza alcuna garanzia di correttezza e completezza. Leggi il disclaimer o segnalaci un problema.

IMMAGINI

IN SINTESI

Prezzo:
17.770 €
Superficie:
146 m²
Prezzo al m²:
121 €/m²
Piano:
Bagni:
1
Classe energetica:
A
Città:
Bobbio (PC)
Zona OMI:
R1 (RIMANENTE PARTE DEL TERRITORIO CON FRAZIONI E FABBRICATI SPARSI)
Indirizzo:
Pubblicato:
gio 25 settembre 2025

DESCRIZIONE

con cantina con balcone in asta giudiziaria

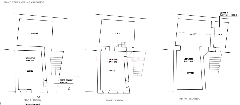
NUOVA PROPOSTA IMMOBILE LIBERO Abitazione situata a Bobbio (PC).a (Mulino d'Area) in Località Mezzano Scotti. Porzione al piano secondo, comprendente un locale ad uso deposito. porzione da cielo a terra costituito da: un piano terreno con due cantine; un piano primo comprendente una camera da letto ed una a cucina. Al secondo piano comprende una camera da letto ed una soffitta. Si trova in una zona tranquilla poco distante dalle vie principali di comunicazione locali. Per te la possibilità di ricevere una consulenza telefonica personalizzata per ottenere un preventivo per il mutuo a condizioni vantaggiose con i nostri partner, il consulente ti fornirà tutte le informazioni e ti guiderà nelle possibilità di aggiudicarti questo affare. L'immobile pubblicato al momento è sottoposto a procedura di vendita legale; Gescom srl è specializzata nella ricerca e pianificazione di investimenti immobiliari secondo innovative strategie di acquisto. Contattaci subito per una consulenza telefonica con uno dei nostri esperti, che ti aiuterà a valutare canali distinti di acquisto dell'immobile, come la procedura di vendita diretta senza ricorrere all'asta (d.lgs. 149/2022) e la possibilità di stralcio immobiliare. Le informazioni sopra riportate non sostituiscono l'avviso pubblicato dal Tribunale competente né l'integrale gestione da parte del delegato designato. Il testo e le specifiche indicate nella presente pagina sono generate automaticamente tramite l'utilizzo di software e/o da A.I. Gescom srl invita a verificare le formazioni e i materiali multimediali sui canali ufficiali, declinando fin d'ora ogni responsabilità su eventuali errori o incongruenze. Gescom srl, leader negli stralci immobiliari e nella consulenza tecnico-legale, non si occupa di attività di intermediazione immobiliare di cui alla legge 39/89. Cl. energ. da verificare. Le foto pubblicate nel presente annuncio sono indicative e non esaustive della tipologia, qualità, consistenza e indicazione geografica dell'immobile CLASSE ENERGETICA: A

  • bachecacase.com
  • annuncio-casa.it
  • bancadellecase.it
  • ioaffitto.it