Valutazione immobiliare indipendente, accurata e gratuita
Appartamento in vendita a Torrile a 79.000 € (cod.658daf36)
Caasa non ha sufficienti informazioni per commentare l'appartamento in vendita a Torrile - 658daf36.
Analisi immobiliare
I dati in posseso di Caasa per quest'immobile sono insufficienti, inaffidabili o contraddittori per proporre un'analisi attendibile.
Mercato immobiliare a Torrile
Per quanto riguarda più in generale il comune di Torrile, sono presenti al momento più di cinquanta annunci per
appartamenti in vendita (meno dell'1% dell'intera provincia)
e il maggior numero di annunci per questa tipologia sono relativi alla zona di San Polo.
Possiamo inoltre considerare che in tutto il comune negli ultimi 6 mesi, i prezzi per appartamenti in vendita sono
in aumento (+3,25%).
NOVITÀ Il risultato che vedi dipende dai dati che siamo riusciti ad estrarre dall'annuncio: ottieni una stima più accuranta di questo immobile, inserendo dati più precisi.
N.B. L'Opinione di Caasa® è un servizio sperimentale realizzato tramite tecniche di Intelligenza Artificiale, fornito senza alcuna garanzia di correttezza e completezza. Leggi il disclaimer o segnalaci un problema.
IMMAGINI
IN SINTESI
PROPOSTO DA:
Grandi Agenzie Studio Parma s.r.l.
DESCRIZIONE
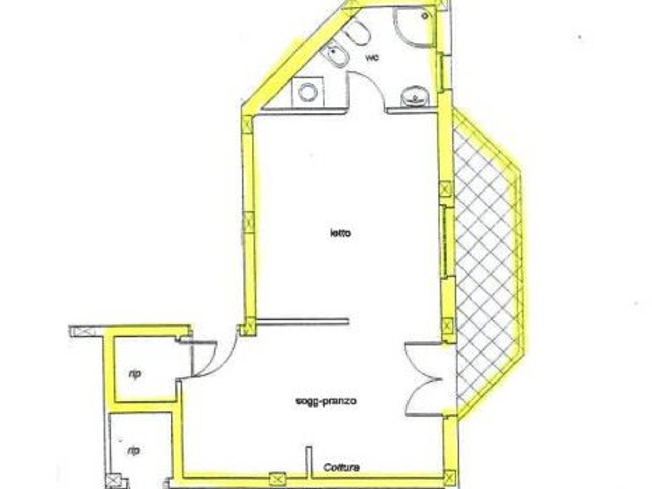
da ristrutturare con posto auto con garage con cantina con terrazza da ristrutturare con termocondizionamento con riscaldamento autonomo con angolo cottura con climatizzazione con ascensore
riferimento: PR-GA-TR-CA2-sanpolo-79 In posizione richiestissima grazie alle numerose aziende presenti, ecco un acquisto facile e conveniente perfetto sia per chi desidera far fruttare il proprio denaro investendolo nella direzione giusta, sia per chi è al primo acquisto e desidera una soluzione poco impegnativa ma dal grande potenziale. Bilocale recente e luminosissimo posto a piano alto con ascensore in conteso del 2000. L’appartamento si compone di un’accogliente zona giorno con angolo cottura, ripostiglio e ampia loggia abitabile, camera matrimoniale e bagno finestrato. E’ presente inoltre una comoda cantina con possibilità di acquistare uno spazioso garage a parte. Climatizzato, con riscaldamento autonomo, pronto per essere abitato! Un acquisto semplice, di facile gestione, che ti consentirà di abbandonare finalmente l’affitto, ma di dormire sonni tranquilli. Contattaci subito e fissa la tua consulenza! Per informazioni chiama il 347 4651630 (cellulare diretto) oppure in filiale al numero indicando il riferimento annuncio o l`indirizzo dell`immobile. Grandi Agenzie é un brand del gruppo HouseTree SPA, un’azienda che mette al centro la casa e tutti i servizi collegati, operando con particolare attenzione alla sostenibilità ambientale, all’efficientamento energetico e al consumo responsabile delle risorse. IMPORTANTE: Si precisa che le descrizioni sopra riportate non rappresentano alcun impegno contrattuale. Si avvisa inoltre la spettabile clientela che le caratteristiche tecniche, la disposizione interna e gli accessori indicati potrebbero, in alcuni casi, differire dall’effettivo stato di fatto dell’immobile. A causa delle difformità dei dati pubblicati dai vari portali, la società HouseTree SPA declina ogni responsabilità per eventuali involontarie incoerenze



