Valutazione immobiliare indipendente, accurata e gratuita
Appartamento in affitto a Salsomaggiore Terme a 700 € mese (cod.64fef7bf)
Caasa non ha sufficienti informazioni per commentare l'appartamento in affitto a Salsomaggiore Terme - 64fef7bf.
Analisi immobiliare
I dati in posseso di Caasa per quest'immobile sono insufficienti, inaffidabili o contraddittori per proporre un'analisi attendibile.
Mercato immobiliare a Salsomaggiore Terme
Per quanto riguarda più in generale la città di Salsomaggiore Terme, sono presenti al momento più di dieci annunci per
appartamenti in affitto (meno del 5% dell'intera provincia)
e il maggior numero di annunci per questa tipologia sono relativi alla zona di Ceriati.
Vedi altre informazioni direttamente su
Mercato-Immobiliare.info
NOVITÀ Il risultato che vedi dipende dai dati che siamo riusciti ad estrarre dall'annuncio: ottieni una stima più accuranta di questo immobile, inserendo dati più precisi.
N.B. L'Opinione di Caasa® è un servizio sperimentale realizzato tramite tecniche di Intelligenza Artificiale, fornito senza alcuna garanzia di correttezza e completezza. Leggi il disclaimer o segnalaci un problema.
IMMAGINI
IN SINTESI
DESCRIZIONE
con arredamento con termocondizionamento con angolo cottura
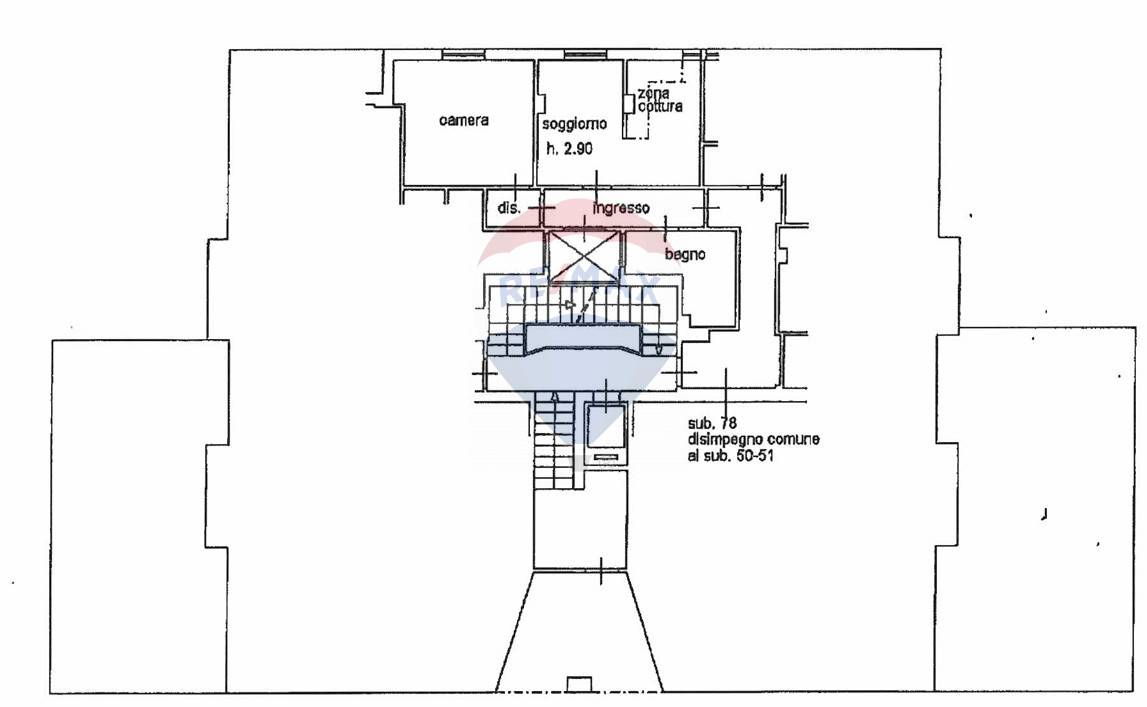
Bilocale in affitto – spese condominiali incluse Proponiamo in affitto un accogliente bilocale composto da soggiorno con angolo cottura, camera matrimoniale e bagno con doccia. L’appartamento è ideale per chi cerca una soluzione pratica e funzionale in una zona ben servita. Il canone mensile comprende le spese condominiali, offrendo così un notevole vantaggio in termini di gestione dei costi. Disponibile da subito




