Valutazione immobiliare indipendente, accurata e gratuita
Appartamento in vendita a Parma in zona Gaione a 470.000 € (cod.650589bc)
Caasa non ha sufficienti informazioni per commentare l'appartamento in vendita a Parma in zona Gaione - 650589bc.
Analisi immobiliare
I dati in posseso di Caasa per quest'immobile sono insufficienti, inaffidabili o contraddittori per proporre un'analisi attendibile.
Mercato immobiliare a Parma
Per quanto riguarda più in generale la città di Parma, sono presenti al momento ben oltre 2.000 annunci per
appartamenti in vendita (quasi il 40% dell'intera provincia)
e il maggior numero di annunci per questa tipologia sono relativi alla zona di Centro Storico, mentre la zona di Gaione risulta molto meno attiva considerando il numero di annunci presenti.
La richiesta media nella zona dove sorge l'appartamento (Gaione) è pari a
3.135 €/m² e ne fa la più pregiata della città .
Per quanto riguarda la dinamica dei prezzi, negli ultimi 6 mesi i prezzi medi in tutta la città per appartamenti in vendita sono
in aumento (+4,21%).
NOVITÀ Il risultato che vedi dipende dai dati che siamo riusciti ad estrarre dall'annuncio: ottieni una stima più accuranta di questo immobile, inserendo dati più precisi.
N.B. L'Opinione di Caasa® è un servizio sperimentale realizzato tramite tecniche di Intelligenza Artificiale, fornito senza alcuna garanzia di correttezza e completezza. Leggi il disclaimer o segnalaci un problema.
IMMAGINI
IN SINTESI
PROPOSTO DA:
Affiliato Tecnorete: MIOSOTIS SRL
DESCRIZIONE
di nuova costruzione con posto auto con garage con terrazza con termocondizionamento con ascensore di nuova costruzione
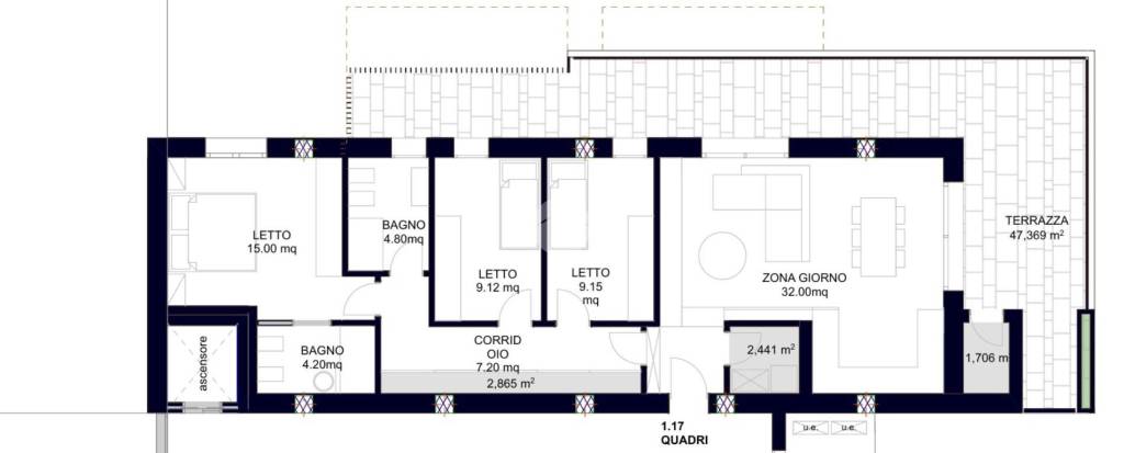
ATTICO DI NUOVA COSTRUZIONE – AMPIA TERRAZZA VIVIBILE In posizione strategica e tra le più richieste della città, a soli 8 minuti da Sidoli, alle spalle del Famila e nelle vicinanze del Campus, sorge un nuovo ed esclusivo progetto residenziale composto da due palazzine moderne dal design essenziale. Tra gli edifici verrà realizzato uno spazio condominiale multifunzionale pensato per attività fitness/benessere o come area condivisa, un plus raro nei nuovi interventi edilizi. L’attico è composto da: Ampia zona giorno open space con vetrate a tutta altezza e continuità verso la terrazza Tre camere da letto Due bagni finestrati con finiture moderne Comoda dispensa adiacente alla cucina Locale tecnico separato TERRAZZA ABITABILE DI 50 m² Un ambiente scenografico e fruibile in ogni stagione, ideale per zona pranzo outdoor, area lounge relax, verde decorativo o piccola palestra a cielo aperto: una vera estensione dell'abitazione. TECNOLOGIA DI ULTIMA GENERAZIONE – LUSSO SOSTENIBILE Ventilazione Meccanica Controllata (VMC) per aria sempre filtrata e ricambio costante Riscaldamento e raffrescamento ad aria canalizzata per comfort uniforme Pannelli fotovoltaici con batterie di accumulo per riduzione dei costi e massima efficienza Predisposizione domotica Elevato isolamento termoacustico per silenzio, risparmio energetico e totale privacy SERVIZI E DOTAZIONI Garage e posti auto Ascensore di ultima generazione Spazi comuni curati, con attenzione all’estetica e alla riservatezza POSIZIONE Zona tranquilla e residenziale Servizi raggiungibili a piedi: supermercato, Campus, scuole e parchi Ottimi collegamenti con le principali arterie della città Sono disponibili bilocali, trilocali, quadrilocali e attici panoramici con ampi terrazzi, giardini privati e finiture personalizzabili. Prezzi a partire da 195.000 €. Per maggiori informazioni e per fissare un appuntamento, contatta Chiara al 338.6367533


