Valutazione immobiliare indipendente, accurata e gratuita
L'Opinione di Caasa® per l'appartamento in vendita a Parma in zona Centro Storico a 285.000 € (cod.64fd6af8)
Secondo Caasa, per l'appartamento a Parma in zona Centro Storico, la richiesta di 285.000 € è equilibrata rispetto agli annunci simili.
Analisi immobiliare
L'appartamento, situato nella zona OMI B4, è proposto in vendita (da Edizionecasa) a
285.000 € per una
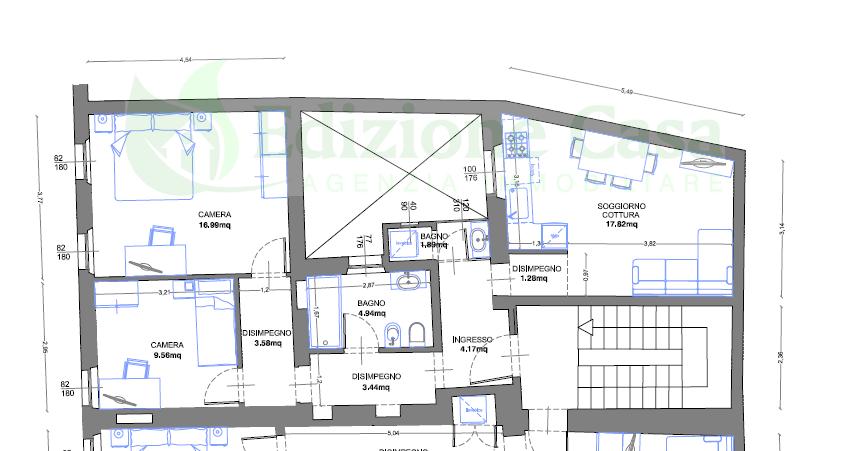
superficie commerciale di
86 m² e quindi ad un prezzo per metro quadrato pari a
3313 €/m²
.
Questo valore
è molto vicino a quello stimato da Caasa per immobili in vendita simili per tipologia, caratteristiche, classe energetica e localizzati nella stessa zona OMI, che è compreso tra
3.217 €/m² e
3.467 €/m².
La conoscenza con buona approssimazione della localizzazione dell'immobile ha consentito di utilizzare come raffronto i dati medi elaborati esattamente nella zona OMI di appertenenza (STRADA DELLA REPUBBLICA, VIA GARIBALDI, VIA CAVOUR, VIA FARINI, VIALE FRATTI) per appartamenti (da 2.050 €/m² a 3.470 €/m²). Inoltre, Caasa ha potuto affinare la stima anche con la conoscenza della classe energetica (A) oltre che dello stato dell'immobile (di recente ristrutturazione) e di alcune caratteristiche significative come la disponibilità di una cantina. Per queste ragioni è possibile considerare un intervallo di valori accettabili per l'offerta abbastanza limitato.
Mercato immobiliare a Parma
Per quanto riguarda più in generale la città di Parma, sono presenti al momento ben oltre 2.000 annunci per
appartamenti in vendita (quasi la metà dell'intera provincia)
e il maggior numero di annunci per questa tipologia sono relativi proprio alla zona di Centro Storico.
La richiesta media nella zona dove sorge l'appartamento (Centro Storico) è pari a
2.855 €/m², molto vicina ai valori della zona Cittadella che sono i più alti della città .
Per quanto riguarda la dinamica dei prezzi, negli ultimi 6 mesi i prezzi medi in tutta la città per appartamenti in vendita sono
in aumento (+4,21%).
NOVITÀ Il risultato che vedi dipende dai dati che siamo riusciti ad estrarre dall'annuncio: ottieni una stima più accuranta di questo immobile, inserendo dati più precisi.
N.B. L'Opinione di Caasa® è un servizio sperimentale realizzato tramite tecniche di Intelligenza Artificiale, fornito senza alcuna garanzia di correttezza e completezza. Leggi il disclaimer o segnalaci un problema.
IMMAGINI
IN SINTESI
DESCRIZIONE
di recente ristrutturazione con cantina di recente ristrutturazione di nuova costruzione edificio storico
Elegante Appartamento Ristrutturato in Centro Storico – Parma Nel cuore del centro storico di Parma, nella sua zona più esclusiva, proponiamo in vendita un raffinato appartamento situato al primo piano di un elegante palazzo d’epoca. ???? Superficie: 85 m² ???? Condizioni: Completamente ristrutturato con materiali di pregio ???? – massima efficienza e risparmio energetico ???? Accessori: Cantina inclusa ???? Posizione: Vicinissimo a tutti i servizi, negozi, ristoranti e trasporti ???? Consegna: Prevista tra un mese Un'opportunità unica per chi desidera vivere nel fascino del centro storico con il massimo comfort e qualità abitativa. ???? Per informazioni e visite Francesco Rago 3315285724










