Valutazione immobiliare indipendente, accurata e gratuita
Capannone in affitto a Parma a 8.000 € mese (cod.655843d1)
Caasa non ha sufficienti informazioni per commentare il capannone in affitto a Parma - 655843d1.
Analisi immobiliare
I dati in posseso di Caasa per quest'immobile sono insufficienti, inaffidabili o contraddittori per proporre un'analisi attendibile.
Mercato immobiliare a Parma
Per quanto riguarda più in generale la città di Parma, sono presenti al momento circa cento annunci per
capannoni in affitto (più della metà dell'intera provincia)
e il maggior numero di annunci per questa tipologia sono relativi alla zona di Centro Storico.
Vedi altre informazioni direttamente su
Mercato-Immobiliare.info
NOVITÀ Il risultato che vedi dipende dai dati che siamo riusciti ad estrarre dall'annuncio: ottieni una stima più accuranta di questo immobile, inserendo dati più precisi.
N.B. L'Opinione di Caasa® è un servizio sperimentale realizzato tramite tecniche di Intelligenza Artificiale, fornito senza alcuna garanzia di correttezza e completezza. Leggi il disclaimer o segnalaci un problema.
IMMAGINI
IN SINTESI
DESCRIZIONE
di nuova costruzione con termocondizionamento con balcone con riscaldamento autonomo di nuova costruzione senza ascensore
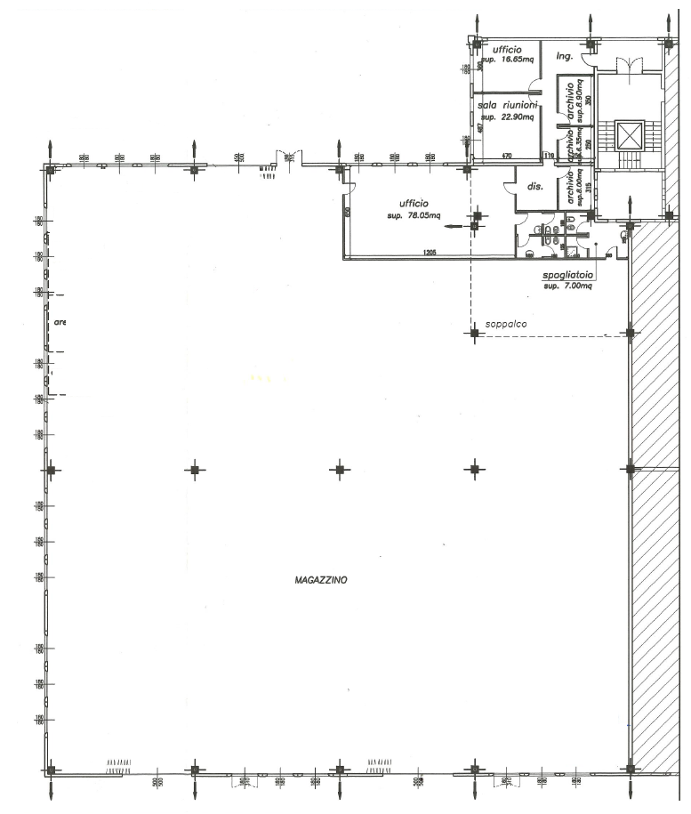
Capannone in affitto allo SPIP L'immobile è situato all'interno del comparto industriale SPIP di Parma, in posizione strategica grazie alla vicinanza alla Tangenziale e al casello autostradale A1. La superficie complessiva è di circa 1.900mq ed è così articolata: Magazzino di circa 1.623mq, completo di spogliatoi e servizi; Uffici interni al capannone per circa 81mq; Soppalco di circa 90mq; Ulteriori uffici e vani deposito per circa 106mq, direttamente accessibili dall'esterno. Riscaldati e raffrescati gli uffici. Il capannone è composto da quattro campate con pilastri senza mensola e presenta altezze interne di circa 7,00m sotto trave e 10,00m circa complessivi. L'immobile è dotato di tre portoni carrabili, di cui uno affacciato su una zona coperta con tettoia, ideale per le operazioni di carico e scarico merci. L'area cortiliva è di 1.100mq circa e si distribuisce sui tre lati del capannone. Grazie alla presenza di ampie finestrature, l'immobile si presta sia a un utilizzo logistico/magazzino sia a uso produttivo. Disponibile da giugno 2026. Rif. 1840 Per informazioni: Immobili Parma Srls, Via Giovanni Giolitti 2/A, 43126 Parma, Tel. 05211962370, info@immobiliaziendali.eu www.immobiliaziendali.eu IMPORTANTE: l'effettivo stato dell'immobile potrebbe in alcuni casi discostarsi dalle caratteristiche tecniche, dalla disposizione interna e gli accessori indicati in annuncio. I portali possono pubblicare dati differenti, pertanto, la società Immobili Parma Srls declina ogni responsabilità per possibili incongruenze. Precisiamo inoltre che l'indirizzo pubblicato è indicativo al fine di tutelare la privacy del venditore. L'indirizzo corretto verrà comunicato previo incontro presso la nostra sede. (Classe Energetica in fase di richiesta


