Valutazione immobiliare indipendente, accurata e gratuita
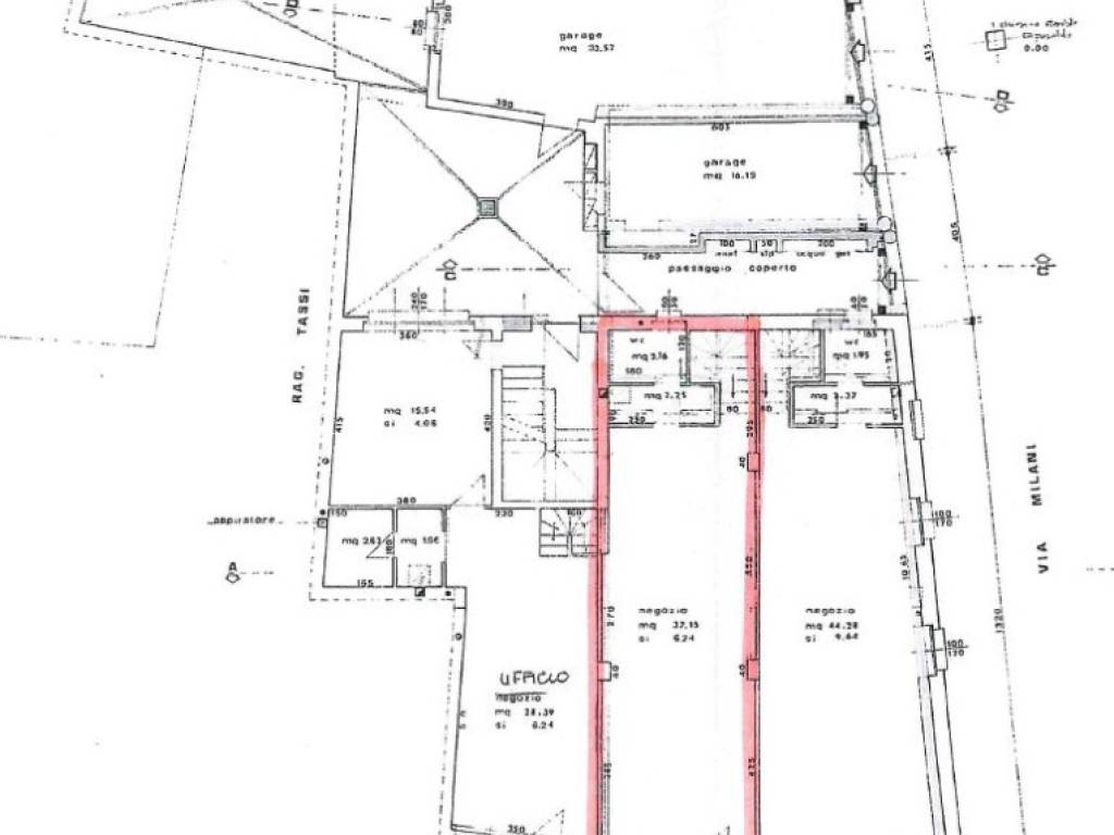
Negozio in vendita a Fidenza (cod.65543f99)
Caasa non ha sufficienti informazioni per commentare il negozio in vendita a Fidenza - 65543f99.
Analisi immobiliare
I dati in posseso di Caasa per quest'immobile sono insufficienti, inaffidabili o contraddittori per proporre un'analisi attendibile.
Mercato immobiliare a Fidenza
Per quanto riguarda più in generale la città di Fidenza, sono presenti al momento più di cinquanta annunci per
negozi in vendita (meno del 10% dell'intera provincia)
e il maggior numero di annunci per questa tipologia sono relativi alla zona di San Faustino.
Vedi altre informazioni direttamente su
Mercato-Immobiliare.info
NOVITÀ Il risultato che vedi dipende dai dati che siamo riusciti ad estrarre dall'annuncio: ottieni una stima più accuranta di questo immobile, inserendo dati più precisi.
N.B. L'Opinione di Caasa® è un servizio sperimentale realizzato tramite tecniche di Intelligenza Artificiale, fornito senza alcuna garanzia di correttezza e completezza. Leggi il disclaimer o segnalaci un problema.
