Valutazione immobiliare indipendente, accurata e gratuita
Appartamento in vendita a Novi di Modena a 38.000 € (cod.652d7050)
Caasa non ha sufficienti informazioni per commentare l'appartamento in vendita a Novi di Modena - 652d7050.
Analisi immobiliare
I dati in posseso di Caasa per quest'immobile sono insufficienti, inaffidabili o contraddittori per proporre un'analisi attendibile.
Mercato immobiliare a Novi di Modena
Per quanto riguarda più in generale il comune di Novi di Modena, sono presenti al momento più di 150 annunci per
appartamenti in vendita (meno del 5% dell'intera provincia)
e il maggior numero di annunci per questa tipologia sono relativi alla zona di Rovereto sulla Secchia.
Per quanto riguarda la dinamica dei prezzi, negli ultimi 6 mesi i prezzi medi in tutto il comune per appartamenti in vendita sono
in deciso aumento (+8,67%).
NOVITÀ Il risultato che vedi dipende dai dati che siamo riusciti ad estrarre dall'annuncio: ottieni una stima più accuranta di questo immobile, inserendo dati più precisi.
N.B. L'Opinione di Caasa® è un servizio sperimentale realizzato tramite tecniche di Intelligenza Artificiale, fornito senza alcuna garanzia di correttezza e completezza. Leggi il disclaimer o segnalaci un problema.
IMMAGINI
IN SINTESI
PROPOSTO DA:
EurocasaImm Agenzie Immobiliari
DESCRIZIONE
di nuova costruzione con posto auto di recente ristrutturazione di nuova costruzione senza ascensore
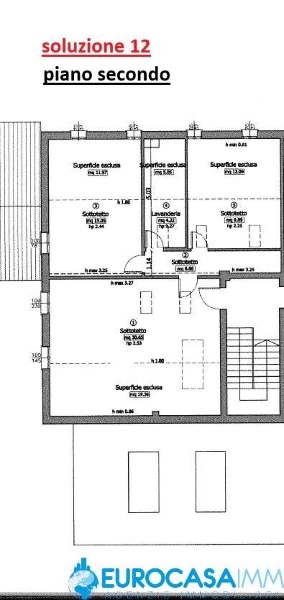
NOVI – ESCLUSIVA! SOLO 2 UNITÀ DISPONIBILI! Proponiamo 2 soffitte nuove in pronta consegna, al secondo ed ultimo piano (senza ascensore), di 130mq circa, composta da 3 ampi vani oltre al bagno. Perfette come pied-à-terre, studio o per chi vuole investire con spesa contenuta in un contesto curato e moderno. Non abitabili ma dotate di tutti i comfort di un appartamento. Una delle due unità dispone di posto auto di proprietà. NESSUNA PROVVIGIONE DA PAGARE, ONORARIO DEL NOTAIO GIÀ INCLUSO, E DETRAZIONI FISCALI CON RECUPERO DEL 50% IN 10 ANNI SU UNA QUOTA DEL 25% DEL VALORE DELL’IMMOBILE. DISPONIBILI FINITE E RIFINITE OVUNQUE IN OGNI LORO PARTE A PARTIRE DAL 31/12/2025. Soluzioni ideali come appoggio, studio o investimento, moderne e senza costi extra


