Valutazione immobiliare indipendente, accurata e gratuita
L'Opinione di Caasa® per l'appartamento in vendita a Modena in zona Buon Pastore a 218.000 € (cod.65a951fb)
Secondo Caasa, per l'appartamento a Modena in zona Buon Pastore, la richiesta di 218.000 € è leggermente svantaggiosa rispetto agli annunci simili.
Analisi immobiliare
L'appartamento, situato vicino a Via Francesco Guicciardini nella zona OMI C9, è proposto in vendita a
218.000 € per una
superficie commerciale di
80 m² e quindi ad un prezzo per metro quadrato pari a
2725 €/m²
.
Tale valore
è di poco superiore a quello stimato da Caasa per immobili in vendita simili per tipologia e caratteristiche e localizzati nella stessa zona OMI, che è compreso tra
2.456 €/m² e
2.658 €/m².
Grazie alla conoscenza con buona approssimazione della localizzazione dell'immobile, è stato possibile utilizzare come raffronto i dati medi elaborati esattamente nella zona OMI di appertenenza (CAPOLUOGO - SAN FAUSTINO, STAZIONE AUTOCORRIERE) per appartamenti (da 2.105 €/m² a 3.350 €/m²). Anche se Caasa non è riuscita a determinare la classe energetica, ad affinare la stima hanno contribuito anche lo stato dell'immobile (di recente ristrutturazione) e la presenza di alcune caratteristiche significative come la disponibilità di una cantina. Per queste ragioni i valori accettabili per l'offerta costituiscono un intervallo relativamente limitato.
Mercato immobiliare a Modena
Per quanto riguarda più in generale la città di Modena, sono presenti al momento ben oltre 3.000 annunci per
appartamenti in vendita (meno di un terzo dell'intera provincia)
e il maggior numero di annunci per questa tipologia sono relativi alla zona di Centro Storico, mentre la zona di Buon Pastore risulta molto meno attiva considerando il numero di annunci presenti.
La richiesta media nella zona dove sorge l'appartamento (Buon Pastore pressi Via Francesco Guicciardini) è pari a
2.685 €/m², molto vicina ai valori della zona Centro Storico che sono i più alti della città .
La dinamica dei prezzi in tutta la città mostra che negli ultimi 6 mesi, i prezzi per appartamenti in vendita sono
sostanzialmente stabili (+0,27%).
NOVITÀ Il risultato che vedi dipende dai dati che siamo riusciti ad estrarre dall'annuncio: ottieni una stima più accuranta di questo immobile, inserendo dati più precisi.
N.B. L'Opinione di Caasa® è un servizio sperimentale realizzato tramite tecniche di Intelligenza Artificiale, fornito senza alcuna garanzia di correttezza e completezza. Leggi il disclaimer o segnalaci un problema.
IMMAGINI
IN SINTESI
PROPOSTO DA:
IMMOBILIARE MEDAGLIE D'ORO S.R.L.
DESCRIZIONE
di recente ristrutturazione con terrazza con cantina con balcone con termocondizionamento di recente ristrutturazione con riscaldamento autonomo con angolo cottura
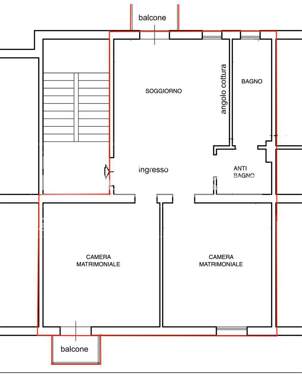
VD4758 ZONA BUON PASTORE, comoda ai servizi e vicina al centro storico, VENDESI appartamento COMPLETAMENTE RISTRUTTURATO posto al secondo piano di piccola palazzina. Composto da soggiorno con angolo cottura, anti bagno, bagno, due camere da letto matrimoniali e due balconi. Completo di ampia cantina posta al piano terra. Dotato di riscaldamento autonomo e Aria condizionata, Richiesta euro 218.000 tratt. Appartamento Molto interessante




