Valutazione immobiliare indipendente, accurata e gratuita
L'Opinione di Caasa® per l'appartamento in vendita a Modena in zona Buon Pastore a 588.225 € (cod.6596683f)
Secondo Caasa, per l'appartamento a Modena in zona Buon Pastore, la richiesta di 588.225 € è leggermente svantaggiosa rispetto agli annunci simili.
Analisi immobiliare
L'appartamento è proposto in vendita a
588.225 € per una
superficie commerciale di
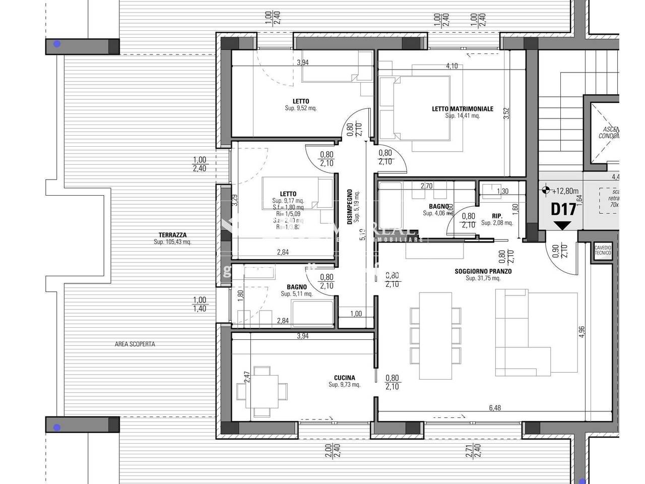
173 m² e quindi ad un prezzo per metro quadrato pari a
3400 €/m²
.
Tale valore
è leggermente meno conveniente di quello stimato da Caasa per immobili in vendita simili per tipologia e caratteristiche, presenti nella stessa zona, che è compreso tra
2.980 €/m² e
3.199 €/m².
Vista la posizione dell'appartamento sono stati utilizzati come raffronto i valori medi nelle zone limitrofe e soprattutto le richieste in vendita per appartamenti in zona Buon Pastore (da 2.095 €/m² a 3.350 €/m²) e per attici in zona Buon Pastore (da 2.100 €/m² a 3.365 €/m²). Caasa non è stata in grado di determinare la classe energetica, ma ad affinare la stima ha contribuito però anche la presenza di alcune caratteristiche significative come il posto auto o la disponibilità di una cantina. Per i motivi esposti i valori possibili per l'offerta costituiscono un intervallo relativamente ampio.
Mercato immobiliare a Modena
Per quanto riguarda più in generale la città di Modena, sono presenti al momento ben oltre 3.000 annunci per
appartamenti in vendita (meno di un terzo dell'intera provincia)
e il maggior numero di annunci per questa tipologia sono relativi alla zona di Centro Storico, mentre la zona di Buon Pastore risulta molto meno attiva considerando il numero di annunci presenti.
La richiesta media nella zona dove sorge l'appartamento (Buon Pastore) è pari a
2.695 €/m², molto vicina ai valori della zona Centro Storico che sono i più alti della città .
La dinamica dei prezzi in tutta la città mostra che negli ultimi 6 mesi, i prezzi per appartamenti in vendita sono
sostanzialmente stabili (+0,19%).
NOVITÀ Il risultato che vedi dipende dai dati che siamo riusciti ad estrarre dall'annuncio: ottieni una stima più accuranta di questo immobile, inserendo dati più precisi.
N.B. L'Opinione di Caasa® è un servizio sperimentale realizzato tramite tecniche di Intelligenza Artificiale, fornito senza alcuna garanzia di correttezza e completezza. Leggi il disclaimer o segnalaci un problema.
IMMAGINI
IN SINTESI
PROPOSTO DA:
IMMOBILIARE MEDAGLIE D'ORO - CANTIERI
DESCRIZIONE
con posto auto con cantina con terrazza con termocondizionamento
MO876_D17. Nostra esclusiva. Zona Morane - Via Felicia Bartolotta, all'interno del nuovo comparto Estense, vendesi attico "D17" al piano quarto di 173 mq. con terrazzo perimetrale di 125 mq. Caratteristica peculiare dell'intervento è l'adozione di avanzate tecnologie impiantistiche d'avanguardia volte al massimo contenimento del consumo energetico nel pieno rispetto dell'ambiente, infatti tutte le unità immobiliari saranno edificate in classe “A4” (secondo la delibera della Regione Emilia Romagna dgr. 20 luglio 2015, n. 967). Il capitolato prevede finiture di pregio tutte personalizzabili, pavimenti in ceramica grandi formati, rubinetterie e sanitari di design, riscaldamento a pavimento, tapparelle motorizzate in alluminio coibentato, zanzariere, impianto di ricambio automatico dell'aria, pannelli fotovoltaici, predisposizione per impianto di climatizzazione e allarme antintrusione. Appartamento così disposto: soggiorno/pranzo, cucina, disimpegno, tre camere da letto (con affaccio su terrazzo), due bagni, ripostiglio e ampio terrazzo perimetrale. Possibilità di personalizzazione degli spazi e delle finiture interne. Possibilità di scelta tra diverse autorimesse e posti auto interni a parte nel prezzo. Prezzo: €.588.225 Consegna dicembre 2028. Per informazioni e visite: 340-7710085 dott. Corica Giuseppe, 335-6917982 Mastrodomenico Emidio, 335-6444800 dott. Gollini Enrico, 335-7853006 geom. Zara Costantino, 335-6880908 geom. Fella Cristiano. In alternativa ulteriori info sul ns sito GRUPPOMORE.IT digitando CODICE DI RIFERIMENTO o inviaci una mail gestionecantieri-gruppomore@cataimm.it

