Valutazione immobiliare indipendente, accurata e gratuita
L'Opinione di Caasa® per l'appartamento in vendita a Modena in zona Crocetta a 370.000 € (cod.65673fa0)
Secondo Caasa, per l'appartamento in vendita a Modena in zona Crocetta, la richiesta di 370.000 € è significativamente svantaggiosa rispetto agli annunci simili.
Analisi immobiliare
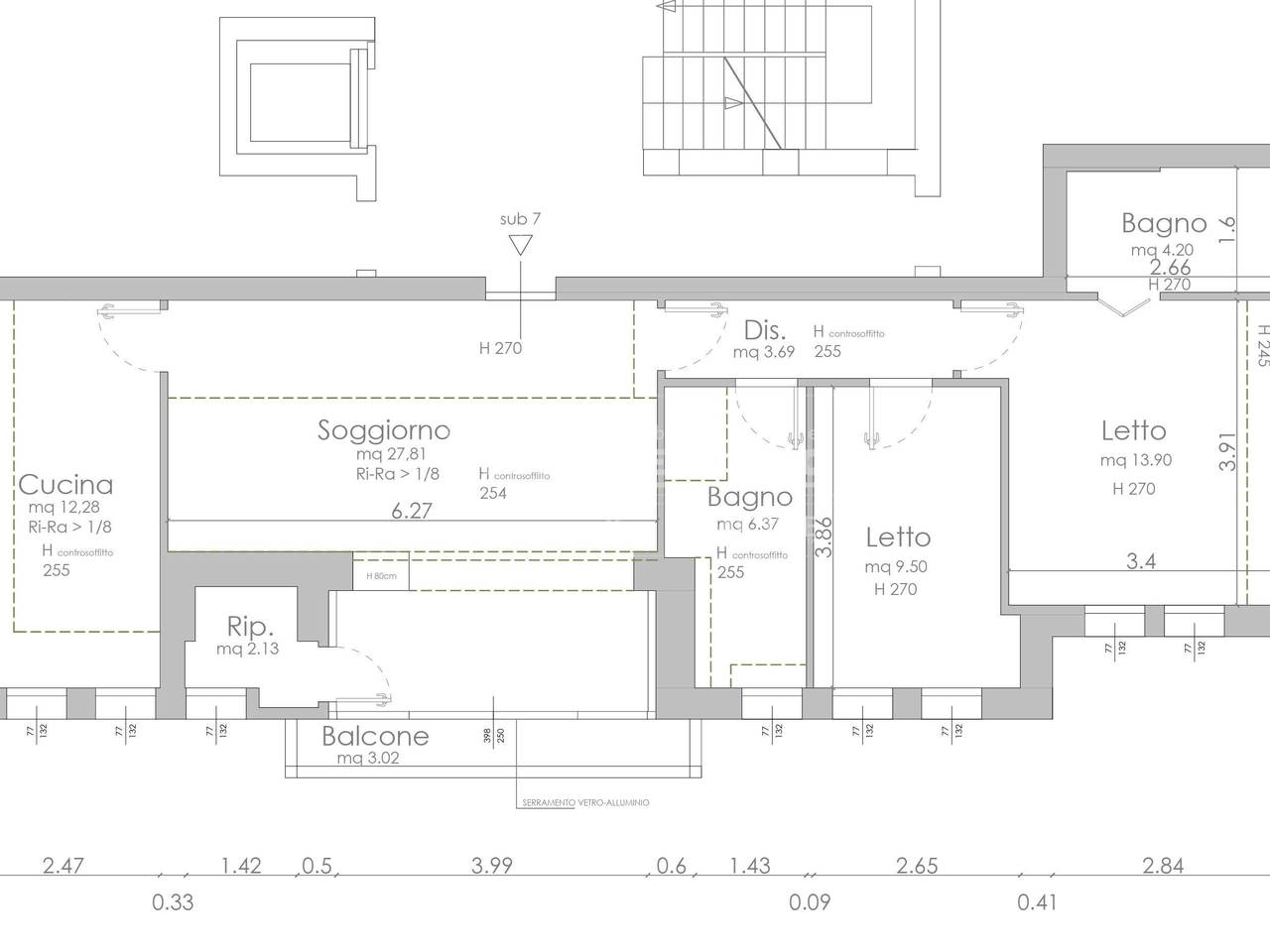
L'appartamento, situato nei pressi di Torrazzi nella zona OMI D33, è proposto in vendita a
370.000 € per una
superficie commerciale di
118 m² e quindi ad un prezzo per metro quadrato pari a
3135 €/m²
.
Questo valore
è significativamente più alto di quello stimato da Caasa per immobili in vendita simili per tipologia e caratteristiche e localizzati nella stessa zona OMI, che è compreso tra
2.644 €/m² e
2.831 €/m².
Grazie alla conoscenza con buona approssimazione della localizzazione dell'immobile, è stato possibile utilizzare come raffronto i dati medi elaborati esattamente nella zona OMI di appertenenza (CAPOLUOGO - SANTA CATERINA, CROCETTA, VIALE GRAMSCI, EX MACELLO) per appartamenti (da 1.910 €/m² a 3.405 €/m²). Anche se Caasa non è riuscita a determinare la classe energetica, ad affinare la stima ha contribuito anche la presenza di alcune caratteristiche significative come la presenza dell'ascensore, il garage o la climatizzazione. Per queste ragioni l'intervallo dei valori accettabili per l'offerta è relativamente limitato.
Mercato immobiliare a Modena
Per quanto riguarda più in generale la città di Modena, sono presenti al momento ben oltre 3.000 annunci per
appartamenti in vendita (meno di un terzo dell'intera provincia)
e il maggior numero di annunci per questa tipologia sono relativi alla zona di Centro Storico, mentre la zona di Crocetta risulta molto meno attiva considerando il numero di annunci presenti.
La richiesta media nella zona dove sorge l'appartamento (Crocetta pressi Torrazzi) è pari a
2.485 €/m², molto vicina ai valori della zona Centro Storico che sono i più alti della città .
Per quanto riguarda la dinamica dei prezzi, negli ultimi 6 mesi i prezzi medi in tutta la città per appartamenti in vendita sono
sostanzialmente stabili (+0,91%).
NOVITÀ Il risultato che vedi dipende dai dati che siamo riusciti ad estrarre dall'annuncio: ottieni una stima più accuranta di questo immobile, inserendo dati più precisi.
N.B. L'Opinione di Caasa® è un servizio sperimentale realizzato tramite tecniche di Intelligenza Artificiale, fornito senza alcuna garanzia di correttezza e completezza. Leggi il disclaimer o segnalaci un problema.
IMMAGINI
IN SINTESI
DESCRIZIONE
con posto auto con garage con terrazza con termocondizionamento con balcone con cucina abitabile con giardino con ascensore con riscaldamento autonomo con climatizzazione
VD4861 Modena, in ottima posizione, comparto Santa Caterina, appartamento di recentissima costruzione posto al piano secondo con ascensore. L'appartamento esposto a sud gode di una bellissima vista sul grande giardino condominiale. L'immobile è composto da ingresso nell'ampia sala con balcone, cucina abitabile, disimpegno notte, due camere e due bagni. Le finiture sono curate nel dettaglio e sono di pregio, parquet a listoni, riscaldamento autonomo a pavimento e aria condizionata con split della Samsung (tutto come nuovo. L'appartamento è dotato di un ottimo garage e di un solaio completo di armadiature su misura. Spese condominiali molto contenute e ottimo contesto. Euro 370.000 APE classe B

