Valutazione immobiliare indipendente, accurata e gratuita
L'Opinione di Caasa® per l'appartamento in vendita a Modena in zona Sant'Agnese a 345.000 € (cod.655849aa)
Secondo Caasa, per l'appartamento a Modena in zona Sant'Agnese, la richiesta di 345.000 € è significativamente vantaggiosa rispetto agli annunci simili.
Analisi immobiliare
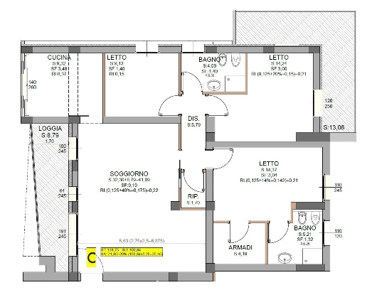
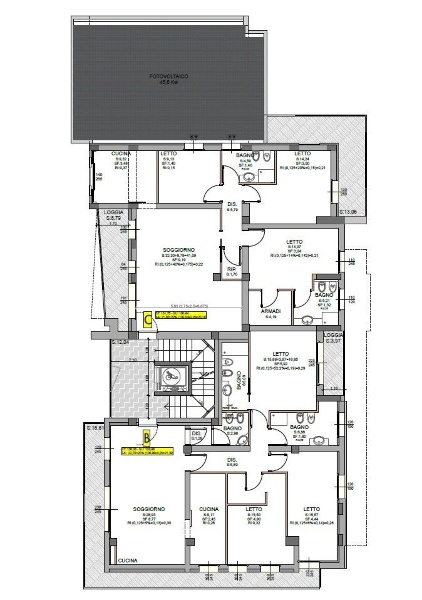
L'appartamento, situato nella zona OMI C10, è proposto in vendita a
345.000 € per una
superficie commerciale di
117 m² e quindi ad un prezzo per metro quadrato pari a
2948 €/m²
.
Questo prezzo
è più vantaggioso di quello stimato da Caasa per immobili in vendita simili per tipologia, caratteristiche, classe energetica e localizzati nella stessa zona OMI, che è compreso tra
3.402 €/m² e
3.591 €/m².
La conoscenza con buona approssimazione della localizzazione dell'immobile ha consentito di utilizzare come raffronto i dati medi elaborati esattamente nella zona OMI di appertenenza (CAPOLUOGO - BUON PASTORE, SANT'AGNESE) per appartamenti (da 2.085 €/m² a 3.505 €/m²) e per trivani (da 2.120 €/m² a 3.190 €/m²). Inoltre, Caasa ha potuto affinare la stima anche con la conoscenza della classe energetica (A+) oltre che dello stato dell'immobile (di nuova costruzione) e di alcune caratteristiche significative come il posto auto. Per queste ragioni è possibile considerare un intervallo di valori accettabili per l'offerta abbastanza limitato.
Mercato immobiliare a Modena
Per quanto riguarda più in generale la città di Modena, sono presenti al momento ben oltre 3.000 annunci per
appartamenti in vendita (meno di un terzo dell'intera provincia)
e il maggior numero di annunci per questa tipologia sono relativi alla zona di Centro Storico, mentre la zona di Sant'Agnese risulta molto meno attiva considerando il numero di annunci presenti.
La richiesta media nella zona dove sorge l'appartamento (Sant'Agnese) è pari a
2.680 €/m², molto vicina ai valori della zona Centro Storico che sono i più alti della città .
Possiamo inoltre considerare che in tutta la città negli ultimi 6 mesi, i prezzi per appartamenti in vendita sono
in debole aumento (+1,89%).
NOVITÀ Il risultato che vedi dipende dai dati che siamo riusciti ad estrarre dall'annuncio: ottieni una stima più accuranta di questo immobile, inserendo dati più precisi.
N.B. L'Opinione di Caasa® è un servizio sperimentale realizzato tramite tecniche di Intelligenza Artificiale, fornito senza alcuna garanzia di correttezza e completezza. Leggi il disclaimer o segnalaci un problema.
IMMAGINI
IN SINTESI
PROPOSTO DA:
CAPITAL AGENZIA IMMOBILIARE
DESCRIZIONE
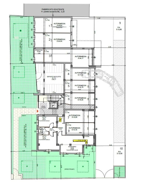
di nuova costruzione con posto auto con giardino di nuova costruzione
Zona Sant'Agnese, Via Monchio NOSTRA ESCLUSIVA: nuova realizzazione di palazzina ( di 8 unità ; disponibili una maisonette con giardino privato, app.ti ai piani con 2/3 camere e due attici. Capitolato con finiture di pregio personalizzabili. Autorimesse e posti auto al piano terra a parte del prezzo. Prezzi a partire da 345.000 Euro. Consegna giugno 2027

