Valutazione immobiliare indipendente, accurata e gratuita
Appartamento in vendita a Modena in zona Centro Storico a 340.000 € (cod.65439222)
Caasa non ha sufficienti informazioni per commentare l'appartamento a Modena in zona Centro Storico - 65439222.
Analisi immobiliare
I dati in posseso di Caasa per quest'immobile sono insufficienti, inaffidabili o contraddittori per proporre un'analisi attendibile.
Mercato immobiliare a Modena
Per quanto riguarda più in generale la città di Modena, sono presenti al momento ben oltre 3.000 annunci per
appartamenti in vendita (meno di un terzo dell'intera provincia)
e il maggior numero di annunci per questa tipologia sono relativi proprio alla zona di Centro Storico.
La richiesta media nella zona dove sorge l'appartamento (Centro Storico) è pari a
2.915 €/m² e ne fa la più pregiata della città .
Possiamo inoltre considerare che in tutta la città negli ultimi 6 mesi, i prezzi per appartamenti in vendita sono
in debole aumento (+1,89%).
NOVITÀ Il risultato che vedi dipende dai dati che siamo riusciti ad estrarre dall'annuncio: ottieni una stima più accuranta di questo immobile, inserendo dati più precisi.
N.B. L'Opinione di Caasa® è un servizio sperimentale realizzato tramite tecniche di Intelligenza Artificiale, fornito senza alcuna garanzia di correttezza e completezza. Leggi il disclaimer o segnalaci un problema.
IMMAGINI
IN SINTESI
PROPOSTO DA:
IMMOBILIARE MEDAGLIE D'ORO S.R.L.
DESCRIZIONE
con posto auto con termocondizionamento con cucina abitabile con riscaldamento autonomo edificio storico
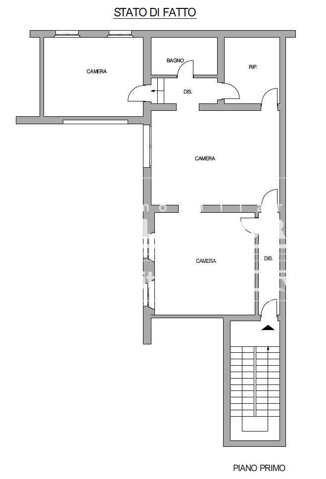
VD4560_ABITAZ. Centro Storico, vicino ai viali del Parco, in Palazzo Storico di particolare pregio disponiamo di libero appartamento posto al piano primo. L'appartamento è composto da ingresso, tre stanze bagno e cucina. Possibilità di posto auto all'interno del palazzo. Attuale destinazione d'uso è UFFICIO ma è possibile declassamento ad abitazione. Spese condominiali molto contenute. Info. c/o ns uffici




