Valutazione immobiliare indipendente, accurata e gratuita
L'Opinione di Caasa® per l'appartamento in vendita a Modena in zona Crocetta a 450.000 € (cod.652d7105)
Secondo Caasa, per l'appartamento in vendita a Modena in zona Crocetta, la richiesta di 450.000 € è leggermente vantaggiosa rispetto agli annunci simili.
Analisi immobiliare
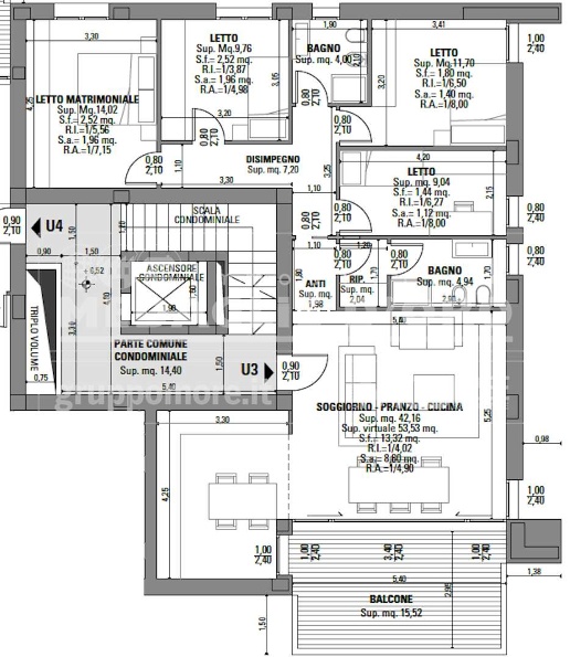
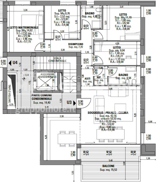
L'appartamento, situato vicino a Via Due Canali Nord nella zona OMI D33, è proposto in vendita a
450.000 € per una
superficie commerciale di
145 m² e quindi ad un prezzo per metro quadrato pari a
3103 €/m²
.
Tale prezzo
è un po' più basso di quello stimato da Caasa per immobili in vendita simili per tipologia, caratteristiche, classe energetica e localizzati nella stessa zona OMI, che è compreso tra
3.232 €/m² e
3.412 €/m².
La conoscenza con buona approssimazione della localizzazione dell'immobile ha consentito di utilizzare come raffronto i dati medi elaborati esattamente nella zona OMI di appertenenza (CAPOLUOGO - SANTA CATERINA, CROCETTA, VIALE GRAMSCI, EX MACELLO) per appartamenti (da 1.920 €/m² a 3.355 €/m²). Inoltre, Caasa ha potuto affinare la stima anche con la conoscenza della classe energetica (A+) oltre che dello stato dell'immobile (di recente costruzione) e di alcune caratteristiche significative come il garage, la presenza dell'ascensore o la disponibilità di una cantina. Per queste considerazioni i valori accettabili per l'offerta costituiscono un intervallo abbastanza limitato.
Mercato immobiliare a Modena
Per quanto riguarda più in generale la città di Modena, sono presenti al momento ben oltre 3.000 annunci per
appartamenti in vendita (meno di un terzo dell'intera provincia)
e il maggior numero di annunci per questa tipologia sono relativi alla zona di Centro Storico, mentre la zona di Crocetta risulta molto meno attiva considerando il numero di annunci presenti.
La richiesta media nella zona dove sorge l'appartamento (Crocetta pressi Via Due Canali Nord) è pari a
2.485 €/m², molto vicina ai valori della zona Centro Storico che sono i più alti della città .
Relativamente alla dinamica dei prezzi, possiamo dire che negli ultimi 6 mesi i prezzi medi in tutta la città per appartamenti in vendita sono
in debole aumento (+2,19%).
NOVITÀ Il risultato che vedi dipende dai dati che siamo riusciti ad estrarre dall'annuncio: ottieni una stima più accuranta di questo immobile, inserendo dati più precisi.
N.B. L'Opinione di Caasa® è un servizio sperimentale realizzato tramite tecniche di Intelligenza Artificiale, fornito senza alcuna garanzia di correttezza e completezza. Leggi il disclaimer o segnalaci un problema.
IMMAGINI
IN SINTESI
PROPOSTO DA:
IMMOBILIARE MEDAGLIE D'ORO S.R.L.
DESCRIZIONE
di recente costruzione con posto auto con garage con cantina con terrazza con termocondizionamento con cucina abitabile con ascensore di recente costruzione
MO763D-U3. Zona Crocetta, in palazzina di prossima realizzazione (Classe A4), disponibile appartamento di 145 mq. ubicato al piano secondo di quattro con ascensore. Immobile ubicato in strada tranquilla, dotato di: terrazzo coperto, riscaldamento a p […]
