Valutazione immobiliare indipendente, accurata e gratuita
Appartamento in vendita a Modena a 290.000 € (cod.650a5c5f)
Caasa non ha sufficienti informazioni per commentare l'appartamento in vendita a Modena - 650a5c5f.
Analisi immobiliare
I dati in posseso di Caasa per quest'immobile sono insufficienti, inaffidabili o contraddittori per proporre un'analisi attendibile.
Mercato immobiliare a Modena
Per quanto riguarda più in generale la città di Modena, sono presenti al momento ben oltre 3.000 annunci per
appartamenti in vendita (meno di un terzo dell'intera provincia)
e il maggior numero di annunci per questa tipologia sono relativi alla zona di Centro Storico.
La dinamica dei prezzi in tutta la città mostra che negli ultimi 6 mesi, i prezzi per appartamenti in vendita sono
in debole aumento (+2,19%).
NOVITÀ Il risultato che vedi dipende dai dati che siamo riusciti ad estrarre dall'annuncio: ottieni una stima più accuranta di questo immobile, inserendo dati più precisi.
N.B. L'Opinione di Caasa® è un servizio sperimentale realizzato tramite tecniche di Intelligenza Artificiale, fornito senza alcuna garanzia di correttezza e completezza. Leggi il disclaimer o segnalaci un problema.
IMMAGINI
IN SINTESI
PROPOSTO DA:
IMMOBILIARE MEDAGLIE D'ORO S.R.L.
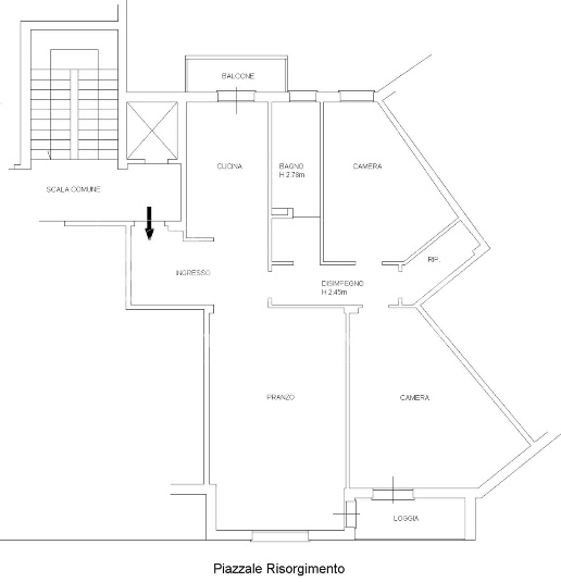
DESCRIZIONE
di recente ristrutturazione con cantina con terrazza con balcone di recente ristrutturazione con ascensore da ristrutturare
VD4862 Porta San Francesco, Modena proponiamo in vendita appartamento moderno posto al 5º piano con ascensore di elegante condominio recentemente oggetto di ristrutturazione 110%, certificato in Classe B (passaggio in classe A dopo eventuale installa […]
