Valutazione immobiliare indipendente, accurata e gratuita
L'Opinione di Caasa® per l'appartamento in vendita a Modena in zona Centro Storico a 590.000 € (cod.65040ebb)
Secondo Caasa, per l'appartamento a Modena in zona Centro Storico, la richiesta di 590.000 € è equilibrata rispetto agli annunci simili.
Analisi immobiliare
L'appartamento, situato vicino a Corso Canalgrande nella zona OMI B3, è proposto in vendita a
590.000 € per una
superficie commerciale di
138 m² e quindi ad un prezzo per metro quadrato pari a
4275 €/m²
.
Tale valore
è in linea con quello stimato da Caasa per immobili in vendita simili per tipologia, caratteristiche, classe energetica e localizzati nella stessa zona OMI, che è compreso tra
4.062 €/m² e
4.339 €/m².
La conoscenza con buona approssimazione della localizzazione dell'immobile ha consentito di utilizzare come raffronto i dati medi elaborati esattamente nella zona OMI di appertenenza (CAPOLUOGO - CENTRO STORICO) per appartamenti (da 2.095 €/m² a 3.495 €/m²) e per quadrivani (da 2.145 €/m² a 3.540 €/m²). Inoltre, Caasa ha potuto affinare la stima anche con la conoscenza della classe energetica (A) oltre che dello stato dell'immobile (di recente ristrutturazione) e di alcune caratteristiche significative come il garage o la presenza dell'ascensore. Per questi motivi i valori accettabili per l'offerta costituiscono un intervallo abbastanza limitato.
Mercato immobiliare a Modena
Per quanto riguarda più in generale la città di Modena, sono presenti al momento ben oltre 3.000 annunci per
appartamenti in vendita (meno di un terzo dell'intera provincia)
e il maggior numero di annunci per questa tipologia sono relativi proprio alla zona di Centro Storico.
La richiesta media nella zona dove sorge l'appartamento (Centro Storico pressi Corso Canalgrande) è pari a
2.895 €/m² e ne fa la più pregiata della città .
La dinamica dei prezzi in tutta la città mostra che negli ultimi 6 mesi, i prezzi per appartamenti in vendita sono
in debole aumento (+2,19%).
NOVITÀ Il risultato che vedi dipende dai dati che siamo riusciti ad estrarre dall'annuncio: ottieni una stima più accuranta di questo immobile, inserendo dati più precisi.
N.B. L'Opinione di Caasa® è un servizio sperimentale realizzato tramite tecniche di Intelligenza Artificiale, fornito senza alcuna garanzia di correttezza e completezza. Leggi il disclaimer o segnalaci un problema.
IMMAGINI
IN SINTESI
PROPOSTO DA:
IMMOBILIARE MEDAGLIE D'ORO S.R.L.
DESCRIZIONE
di recente ristrutturazione con garage con termocondizionamento di recente ristrutturazione con ascensore con riscaldamento autonomo
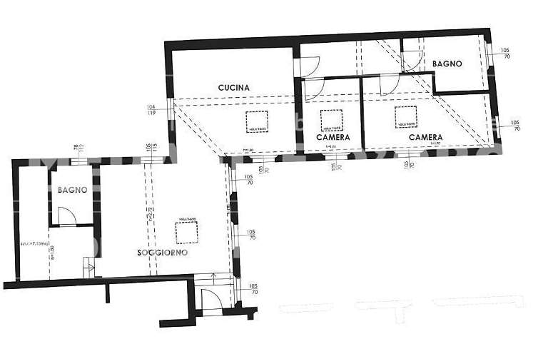
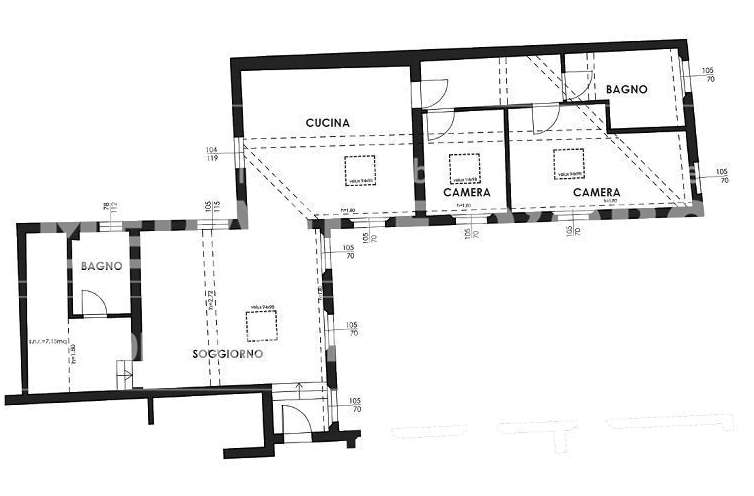
VD2062 CENTRO STORICO Corso Canalgrande Luminoso e spazioso APPARTAMENTO MANSARDATO con ascensore di 4 locali con ottime altezze di in vendita nel Centro Storico di Modena, situato in una zona ben servita. Identifica questa splendida soluzione abitativa, caratterizzata da un prezzo vantaggioso di 590.000,00 euro trattabili La classe energetica A garantisce un elevato risparmio energetico e un comfort termico ottimale. Gli ampi 4 vani, per una superficie totale di 138 mq, offrono spazi ben distribuiti e funzionali per ogni esigenza abitativa. L'appartamento dispone di sala, cucina a a vista, due camere da letto e possibilità di ampia armadiatura nel disimpegno notte, 2 bagni moderni e rifiniti con cura, lavanderia. ideali per garantire privacy e comfort. Con rifiniture di pregio e materiali di qualità, questa soluzione immobiliare rappresenta un'opportunità unica per chi desidera vivere in un contesto del Centro Storico elegante e ben curato. Possibilità Autorimessa





