Valutazione immobiliare indipendente, accurata e gratuita
Negozio in vendita a Modena in zona San Lazzaro / Modena Est a 190.000 € (cod.64d1ce04)
Caasa non ha sufficienti informazioni per commentare il negozio a Modena in zona San Lazzaro / Modena Est - 64d1ce04.
Analisi immobiliare
I dati in posseso di Caasa per quest'immobile sono insufficienti, inaffidabili o contraddittori per proporre un'analisi attendibile.
Mercato immobiliare a Modena
Per quanto riguarda più in generale la città di Modena, sono presenti al momento circa mille annunci per
negozi in vendita (quasi il 40% dell'intera provincia)
e il maggior numero di annunci per questa tipologia sono relativi alla zona di Centro Storico, mentre nella zona di San Lazzaro / Modena Est è presente un numero significativamente inferiore di annunci.
Vedi altre informazioni direttamente su
Mercato-Immobiliare.info
NOVITÀ Il risultato che vedi dipende dai dati che siamo riusciti ad estrarre dall'annuncio: ottieni una stima più accuranta di questo immobile, inserendo dati più precisi.
N.B. L'Opinione di Caasa® è un servizio sperimentale realizzato tramite tecniche di Intelligenza Artificiale, fornito senza alcuna garanzia di correttezza e completezza. Leggi il disclaimer o segnalaci un problema.
IMMAGINI
IN SINTESI
DESCRIZIONE
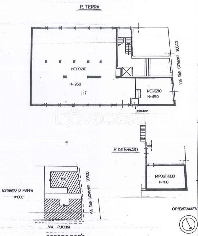
Locale in Vendita: Spazio Commerciale Ideale per Ogni Attività! Scopri questo fantastico negozio di oltre 240 mq, situato al piano terra con una vetrina visibile direttamente dalla strada. Questo open space offre infinite possibilità per la tua attività, permettendoti di personalizzare l'ambiente secondo le tue esigenze. La presenza di un accesso carrabile privato facilita le operazioni di carico e scarico, rendendo il locale estremamente funzionale


