Valutazione immobiliare indipendente, accurata e gratuita
Casa indipendente in vendita a Maranello in zona Torre Maina a 200.000 € (cod.65729471)
Caasa non ha sufficienti informazioni per commentare la casa indipendente a Maranello in zona Torre Maina - 65729471.
Analisi immobiliare
I dati in posseso di Caasa per quest'immobile sono insufficienti, inaffidabili o contraddittori per proporre un'analisi attendibile.
Mercato immobiliare a Maranello
Per quanto riguarda più in generale la città di Maranello, sono presenti al momento più di 150 annunci per
case indipendenti in vendita (meno del 5% dell'intera provincia)
e il maggior numero di annunci per questa tipologia sono relativi alla zona di Pozza, mentre la zona di Torre Maina risulta molto meno attiva considerando il numero di annunci presenti.
Per quanto riguarda la richiesta media in zona Torre Maina, dove sorge la casa indipendente, essa è pari a circa
1.875 €/m² per case indipendenti in vendita.
Relativamente alla dinamica dei prezzi, possiamo dire che negli ultimi 6 mesi i prezzi medi in tutta la città per case indipendenti in vendita sono
in calo (-4,37%).
NOVITÀ Il risultato che vedi dipende dai dati che siamo riusciti ad estrarre dall'annuncio: ottieni una stima più accuranta di questo immobile, inserendo dati più precisi.
N.B. L'Opinione di Caasa® è un servizio sperimentale realizzato tramite tecniche di Intelligenza Artificiale, fornito senza alcuna garanzia di correttezza e completezza. Leggi il disclaimer o segnalaci un problema.
IMMAGINI
IN SINTESI
PROPOSTO DA:
Le Mura Immobiliare Fiorano
DESCRIZIONE
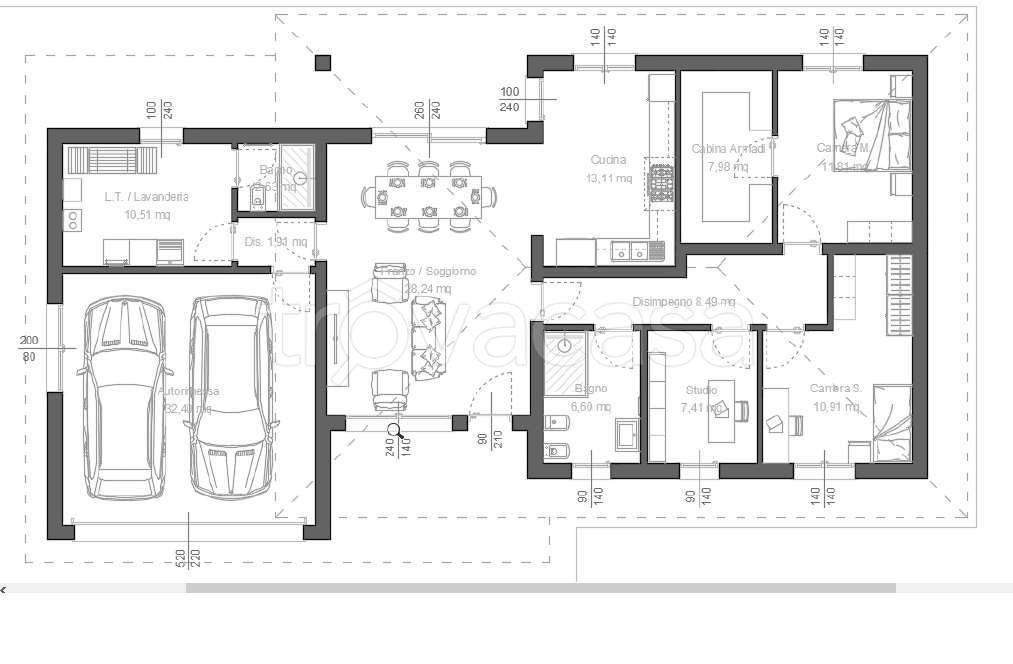
Maranello – Località Torre Maina Immerso nel verde e nella tranquillità delle colline di Maranello, proponiamo in vendita un lotto edificabile di 904 mq. L’area dispone di una superficie complessiva di 170 mq (600 mc), ideale per la realizzazione di una villetta singola unifamiliare. Caratteristiche principali: Posizione panoramica e riservata Ottima esposizione e contesto residenziale Ideale per chi cerca privacy Un’opportunità perfetta per chi desidera costruire la casa dei propri sogni in un ambiente verde e rilassante. Per maggiori informazioni o per fissare un appuntamento, contattaci


