Valutazione immobiliare indipendente, accurata e gratuita
Appartamento in vendita a Maranello (cod.6476fc91)
Caasa non ha sufficienti informazioni per commentare l'appartamento in vendita a Maranello - 6476fc91.
Analisi immobiliare
I dati in posseso di Caasa per quest'immobile sono insufficienti, inaffidabili o contraddittori per proporre un'analisi attendibile.
Mercato immobiliare a Maranello
Per quanto riguarda più in generale la città di Maranello, sono presenti al momento più di 300 annunci per
appartamenti in vendita (meno del 5% dell'intera provincia)
e il maggior numero di annunci per questa tipologia sono relativi alla zona di Pozza.
Relativamente alla dinamica dei prezzi, possiamo dire che negli ultimi 6 mesi i prezzi medi in tutta la città per appartamenti in vendita sono
in debole aumento (+1,31%).
NOVITÀ Il risultato che vedi dipende dai dati che siamo riusciti ad estrarre dall'annuncio: ottieni una stima più accuranta di questo immobile, inserendo dati più precisi.
N.B. L'Opinione di Caasa® è un servizio sperimentale realizzato tramite tecniche di Intelligenza Artificiale, fornito senza alcuna garanzia di correttezza e completezza. Leggi il disclaimer o segnalaci un problema.
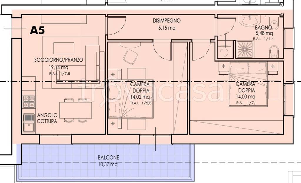
IMMAGINI
IN SINTESI
PROPOSTO DA:
Le Mura Immobiliare Fiorano
DESCRIZIONE
di nuova costruzione con posto auto con garage di nuova costruzione con giardino
MARANELLO – NUOVA COSTRUZIONE IN CLASSE A4 In zona residenziale, a pochi passi dallo stabilimento Ferrari, si accettano prenotazioni per appartamenti di nuova costruzione in Nearly Zero Energy Buildings (NZEB), progettati per offrire il massimo comf […]
