Valutazione immobiliare indipendente, accurata e gratuita
L'Opinione di Caasa® per l'appartamento in vendita a Formigine in zona Casinalbo a 344.000 € (cod.650b396d)
Secondo Caasa, per l'appartamento a Formigine in zona Casinalbo, la richiesta di 344.000 € è significativamente vantaggiosa rispetto agli annunci simili.
Analisi immobiliare
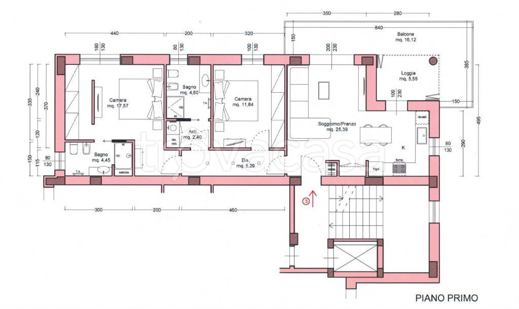
L'appartamento, situato nella zona OMI D4, è proposto in vendita a
344.000 € per una
superficie commerciale di
113 m² e quindi ad un prezzo per metro quadrato pari a
3044 €/m²
.
Tale prezzo
è più conveniente di quello stimato da Caasa per immobili in vendita simili per tipologia, caratteristiche, classe energetica e localizzati nella stessa zona OMI, che è compreso tra
3.985 €/m² e
4.250 €/m².
La conoscenza con buona approssimazione della localizzazione dell'immobile ha consentito di utilizzare come raffronto i dati medi elaborati esattamente nella zona OMI di appertenenza (FRAZIONI DI CASINALBO E CORLO) per appartamenti (da 2.160 €/m² a 3.425 €/m²) e per trivani (da 2.470 €/m² a 3.765 €/m²). Inoltre, Caasa ha potuto affinare la stima anche con la conoscenza della classe energetica (A+) oltre che dello stato dell'immobile (di nuova costruzione) e di alcune caratteristiche significative come la presenza dell'ascensore o il garage. Per i motivi esposti i valori accettabili per l'offerta costituiscono un intervallo abbastanza limitato.
Mercato immobiliare a Formigine
Per quanto riguarda più in generale la città di Formigine, sono presenti al momento oltre 500 annunci per
appartamenti in vendita (meno del 5% dell'intera provincia)
e il maggior numero di annunci per questa tipologia sono relativi proprio alla zona di Casinalbo.
La richiesta media nella zona dove sorge l'appartamento (Casinalbo) è pari a
3.050 €/m² e ne fa la più pregiata della città .
Relativamente alla dinamica dei prezzi, possiamo dire che negli ultimi 6 mesi i prezzi medi in tutta la città per appartamenti in vendita sono
in sostanziale aumento (+5,40%).
NOVITÀ Il risultato che vedi dipende dai dati che siamo riusciti ad estrarre dall'annuncio: ottieni una stima più accuranta di questo immobile, inserendo dati più precisi.
N.B. L'Opinione di Caasa® è un servizio sperimentale realizzato tramite tecniche di Intelligenza Artificiale, fornito senza alcuna garanzia di correttezza e completezza. Leggi il disclaimer o segnalaci un problema.
IMMAGINI
IN SINTESI
DESCRIZIONE
di nuova costruzione con posto auto con garage con terrazza di nuova costruzione con ascensore
RIF. CAS3 TRILOCALE NUOVA COSTRUZIONE Proponiamo ULTIMI appartamento di nuova costruzione con consegna prevista fine 2026, a Casinalbo zona campo sportivo La Bertola. Appartamenti in classe A4 con finiture di pregio in piccolo contesto di sole 5 unità. Immobile posto al PRIMO PIANO servito da ascensore con ingresso su ampia zona giorno\pranzo con accesso a terrazzo, disimpegno, bagno, camera matrimoniale con sbocco su terrazzo e camera 3\4. Possibilità di scelta tra garage e posti auto in area cortiliva privata. Prezzo sola unità immobiliare 343.256,00 Euro (esclusa IVA, esclusi garage e posti auto) Prezzi garage a partire da 27.753,00 Euro (esclusa IVA) Prezzi posti auto a partire da 19.008 Euro (esclusa IVA) PER INFO ANDREA 351 \ 7506616 BCASA SOLUZIONI IMMOBILIARI Via F. Tamburini 180 Modena

