Valutazione immobiliare indipendente, accurata e gratuita
L'Opinione di Caasa® per l'appartamento in vendita a Formigine in zona Casinalbo a 360.000 € (cod.64f41c78)
Secondo Caasa, per l'appartamento a Formigine in zona Casinalbo, la richiesta di 360.000 € è leggermente vantaggiosa rispetto agli annunci simili.
Analisi immobiliare
L'appartamento, situato nella zona OMI D4, è proposto in vendita a
360.000 € per una
superficie commerciale di
124 m² e quindi ad un prezzo per metro quadrato pari a
2903 €/m²
.
Questo valore
è un po' più basso di quello stimato da Caasa per immobili in vendita simili per tipologia e caratteristiche e localizzati nella stessa zona OMI, che è compreso tra
2.959 €/m² e
3.189 €/m².
Grazie alla conoscenza con buona approssimazione della localizzazione dell'immobile, è stato possibile utilizzare come raffronto i dati medi elaborati esattamente nella zona OMI di appertenenza (FRAZIONI DI CASINALBO E CORLO) per appartamenti (da 1.985 €/m² a 3.410 €/m²) e per case indipendenti (da 1.835 €/m² a 3.460 €/m²). Anche se Caasa non è riuscita a determinare la classe energetica, ad affinare la stima hanno contribuito anche lo stato dell'immobile (di recente ristrutturazione) e la presenza di alcune caratteristiche significative come il garage. Per queste ragioni l'intervallo dei valori accettabili per l'offerta è relativamente limitato.
Mercato immobiliare a Formigine
Per quanto riguarda più in generale la città di Formigine, sono presenti al momento oltre 500 annunci per
appartamenti in vendita (meno del 5% dell'intera provincia)
e il maggior numero di annunci per questa tipologia sono relativi proprio alla zona di Casinalbo.
La richiesta media nella zona dove sorge l'appartamento (Casinalbo) è pari a
2.900 €/m² e ne fa la più pregiata della città .
Per quanto riguarda la dinamica dei prezzi, negli ultimi 6 mesi i prezzi medi in tutta la città per appartamenti in vendita sono
in sostanziale aumento (+5,28%).
NOVITÀ Il risultato che vedi dipende dai dati che siamo riusciti ad estrarre dall'annuncio: ottieni una stima più accuranta di questo immobile, inserendo dati più precisi.
N.B. L'Opinione di Caasa® è un servizio sperimentale realizzato tramite tecniche di Intelligenza Artificiale, fornito senza alcuna garanzia di correttezza e completezza. Leggi il disclaimer o segnalaci un problema.
IMMAGINI
IN SINTESI
DESCRIZIONE
di recente ristrutturazione con posto auto con garage con termocondizionamento di recente ristrutturazione con angolo cottura
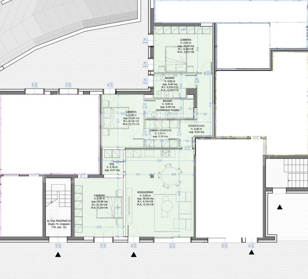
La Gabetti di Fiorano modenese propone in vendita a Casinalbo, in una tranquilla strada chiusa, un elegante appartamento al piano terra, attualmente in fase di completa ristrutturazione, pensato per offrire il massimo comfort abitativo e un design moderno. L’immobile si distingue per gli ambienti ampi e luminosi: il soggiorno doppio con angolo cottura rappresenta il cuore della casa, perfetto per momenti di convivialità e relax. La zona notte comprende tre camere da letto, di cui una matrimoniale con bagno privato e cabina armadio, oltre a un secondo bagno di servizio finemente rifinito. L’appartamento verrà consegnato con finiture contemporanee e materiali di alta qualità: riscaldamento a pavimento, isolamento a cappotto realizzato con pannelli in EPS, infissi in PVC coibentato con serramenti a doppio vetro camera, porta d’ingresso blindata per garantire sicurezza e comfort termico, ecc... Completa la proprietà un ampio garage, ideale per chi cerca praticità e spazio aggiuntivo. Una soluzione moderna e funzionale, immersa nella tranquillità di una zona residenziale riservata, ma comoda ai principali servizi tra Formigine e Modena. Per maggiori informazioni e/o fissare un appuntamento in agenzia non esitate a contattarci


