Valutazione immobiliare indipendente, accurata e gratuita
Casa indipendente in vendita a Finale Emilia a 108.000 € (cod.64f86edc)
Caasa non ha sufficienti informazioni per commentare la casa indipendente in vendita a Finale Emilia - 64f86edc.
Analisi immobiliare
I dati in posseso di Caasa per quest'immobile sono insufficienti, inaffidabili o contraddittori per proporre un'analisi attendibile.
Mercato immobiliare a Finale Emilia
Per quanto riguarda più in generale il comune di Finale Emilia, sono presenti al momento più di 150 annunci per
case indipendenti in vendita (meno del 5% dell'intera provincia)
e il maggior numero di annunci per questa tipologia sono relativi alla zona di Massa Finalese.
Per quanto riguarda la dinamica dei prezzi, negli ultimi 6 mesi i prezzi medi in tutto il comune per case indipendenti in vendita sono
in debole aumento (+1,86%).
NOVITÀ Il risultato che vedi dipende dai dati che siamo riusciti ad estrarre dall'annuncio: ottieni una stima più accuranta di questo immobile, inserendo dati più precisi.
N.B. L'Opinione di Caasa® è un servizio sperimentale realizzato tramite tecniche di Intelligenza Artificiale, fornito senza alcuna garanzia di correttezza e completezza. Leggi il disclaimer o segnalaci un problema.
IMMAGINI
IN SINTESI
DESCRIZIONE
di recente ristrutturazione con posto auto con giardino di recente ristrutturazione con cucina abitabile
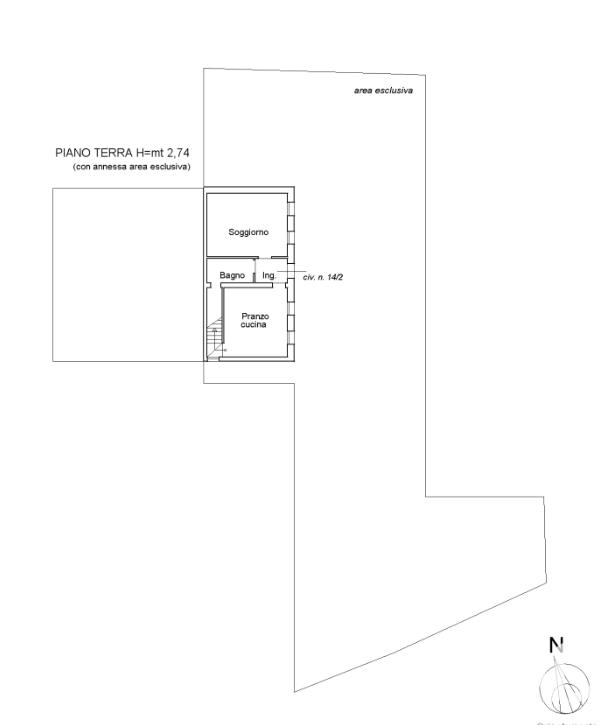
Villetta di testa ristrutturata con giardino L'Agenzia immobiliare Risiko di Mirandola propone in vendita a Finale Emilia, villetta di testa ristrutturata completamente con giardino di proprietà e posto auto. INTERNO: L'abitazione al suo interno si presenta composta su più livelli. Al piano terra troviamo la zona giorno composta da cucina abitabile, soggiorno e bagno. Primo piano: due camere da letto matrimoniali e bagno. Al secondo piano è presente una mansarda che può essere adibita a terza camera. ESTERNO: Contesto indipendente circondato da un ampio giardino di proprietà. PERCHÉ ACQUISTARE L'IMMOBILE: - soluzione indipendente - ampi spazi - completante ristrutturata - giardino


