Valutazione immobiliare indipendente, accurata e gratuita
L'Opinione di Caasa® per l'appartamento in vendita a Castelvetro di Modena a 299.000 € (cod.654f93f8)
Secondo Caasa, per l'appartamento in vendita a Castelvetro di Modena, la richiesta di 299.000 € è equilibrata rispetto agli annunci simili.
Analisi immobiliare
L'appartamento, situato nella zona OMI B3, è proposto in vendita (da Fiduciaria Castelvetro) a
299.000 € per una
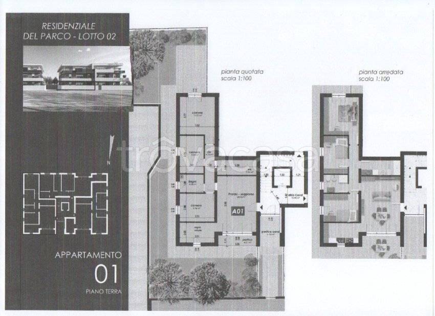
superficie commerciale di
115 m² e quindi ad un prezzo per metro quadrato pari a
2600 €/m²
.
Questo valore
è molto vicino a quello stimato da Caasa per immobili in vendita simili per tipologia, caratteristiche, classe energetica e localizzati nella stessa zona OMI, che è compreso tra
2.436 €/m² e
2.608 €/m².
La conoscenza con buona approssimazione della localizzazione dell'immobile ha consentito di utilizzare come raffronto i dati medi elaborati esattamente nella zona OMI di appertenenza (CAPOLUOGO - CENTRO URBANO). Inoltre, Caasa ha potuto affinare la stima anche con la conoscenza della classe energetica (A+) oltre che dello stato dell'immobile (di nuova costruzione) e di alcune caratteristiche significative come il garage. In virtù di queste considerazioni è possibile considerare un intervallo di valori accettabili per l'offerta abbastanza limitato.
Mercato immobiliare a Castelvetro di Modena
Per quanto riguarda più in generale il comune di Castelvetro di Modena, sono presenti al momento più di 150 annunci per
appartamenti in vendita (meno del 5% dell'intera provincia)
e il maggior numero di annunci per questa tipologia sono relativi alla zona di Solignano Nuovo.
Per quanto riguarda la dinamica dei prezzi, negli ultimi 6 mesi i prezzi medi in tutto il comune per appartamenti in vendita sono
in aumento (+3,87%).
NOVITÀ Il risultato che vedi dipende dai dati che siamo riusciti ad estrarre dall'annuncio: ottieni una stima più accuranta di questo immobile, inserendo dati più precisi.
N.B. L'Opinione di Caasa® è un servizio sperimentale realizzato tramite tecniche di Intelligenza Artificiale, fornito senza alcuna garanzia di correttezza e completezza. Leggi il disclaimer o segnalaci un problema.
IMMAGINI
IN SINTESI
PROPOSTO DA:
Fiduciaria Castelvetro
Via sinistra guerro 49, Castelvetro di Modena (MO)
DESCRIZIONE
di nuova costruzione con posto auto con garage con giardino di nuova costruzione con angolo cottura
RIF. 2000/1/2 Proponiamo a Solignano un appartamento di nuovissima costruzione al piano terra con ingresso indipendente composto da soggiorno con angolo cottura, portico, dis., camera matrimoniale, 2 camere singole, 2 bagni e giardino privato di circa 150 metri. Garage a scelta a partire da € 20.000 ; consegna fine 2026, finiture di pregio. € 299.000

