Valutazione immobiliare indipendente, accurata e gratuita
Appartamento in vendita a Castelfranco Emilia a 210.000 € (cod.6581ae01)
Caasa non ha sufficienti informazioni per commentare l'appartamento in vendita a Castelfranco Emilia - 6581ae01.
Analisi immobiliare
I dati in posseso di Caasa per quest'immobile sono insufficienti, inaffidabili o contraddittori per proporre un'analisi attendibile.
Mercato immobiliare a Castelfranco Emilia
Per quanto riguarda più in generale la città di Castelfranco Emilia, sono presenti al momento oltre 500 annunci per
appartamenti in vendita (meno del 5% dell'intera provincia)
e il maggior numero di annunci per questa tipologia sono relativi alla zona di Piumazzo.
Relativamente alla dinamica dei prezzi, possiamo dire che negli ultimi 6 mesi i prezzi medi in tutta la città per appartamenti in vendita sono
in debole aumento (+1,50%).
NOVITÀ Il risultato che vedi dipende dai dati che siamo riusciti ad estrarre dall'annuncio: ottieni una stima più accuranta di questo immobile, inserendo dati più precisi.
N.B. L'Opinione di Caasa® è un servizio sperimentale realizzato tramite tecniche di Intelligenza Artificiale, fornito senza alcuna garanzia di correttezza e completezza. Leggi il disclaimer o segnalaci un problema.
IMMAGINI
IN SINTESI
PROPOSTO DA:
SIGNORELLI GIOVANNI DI SIGNORELLI GIOVANNI
DESCRIZIONE
con cucina abitabile
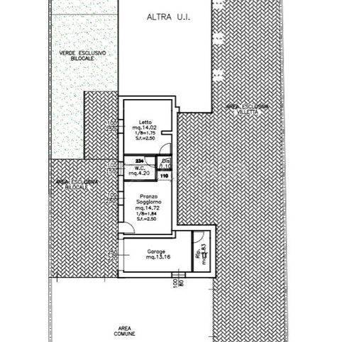
BILOCALE - A RIOLOCaratteristiche principali:- Costruzione di ultima generazione con certificazione energetica Classe A4- Accesso diretto su area cortiliva esterna privata di circa 150 mq - Distribuzione open space: sala cucina abitabile con zona pranzo- Una camera da letto matrimoniale e bagno finestrato-Spazi esterni privati ad uso esclusivo, perfetti per il relax all'apertoL'intervento e realizzato con materiali di alta qualita e rispetta i piu moderni standard di efficienza energetica e comfort abitativo. Possibilita di visionare planimetrie e dettagli tecnici su appuntamento

