Valutazione immobiliare indipendente, accurata e gratuita
Appartamento in vendita a Castelfranco Emilia a 392.000 € (cod.65726d1e)
Caasa non ha sufficienti informazioni per commentare l'appartamento in vendita a Castelfranco Emilia - 65726d1e.
Analisi immobiliare
I dati in posseso di Caasa per quest'immobile sono insufficienti, inaffidabili o contraddittori per proporre un'analisi attendibile.
Mercato immobiliare a Castelfranco Emilia
Per quanto riguarda più in generale la città di Castelfranco Emilia, sono presenti al momento oltre 500 annunci per
appartamenti in vendita (meno del 5% dell'intera provincia)
e il maggior numero di annunci per questa tipologia sono relativi alla zona di Piumazzo.
Possiamo inoltre considerare che in tutta la città negli ultimi 6 mesi, i prezzi per appartamenti in vendita sono
in debole aumento (+1,51%).
NOVITÀ Il risultato che vedi dipende dai dati che siamo riusciti ad estrarre dall'annuncio: ottieni una stima più accuranta di questo immobile, inserendo dati più precisi.
N.B. L'Opinione di Caasa® è un servizio sperimentale realizzato tramite tecniche di Intelligenza Artificiale, fornito senza alcuna garanzia di correttezza e completezza. Leggi il disclaimer o segnalaci un problema.
IMMAGINI
IN SINTESI
PROPOSTO DA:
Istituto Vendite Giudiziarie di Reggio Emilia
DESCRIZIONE
con posto auto con garage in asta giudiziaria
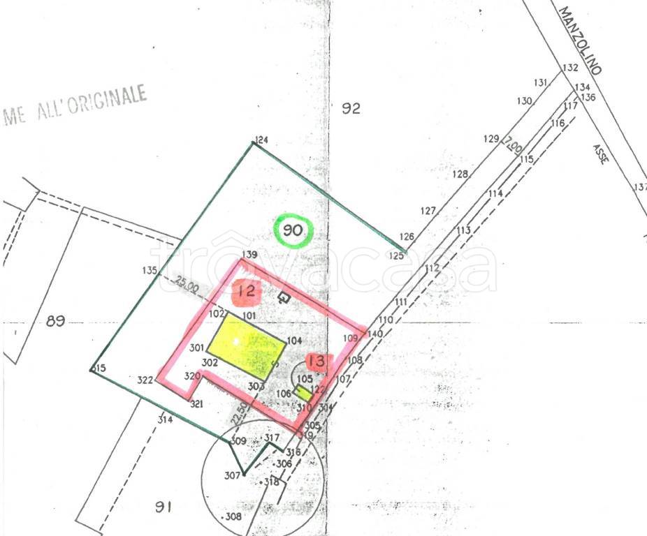
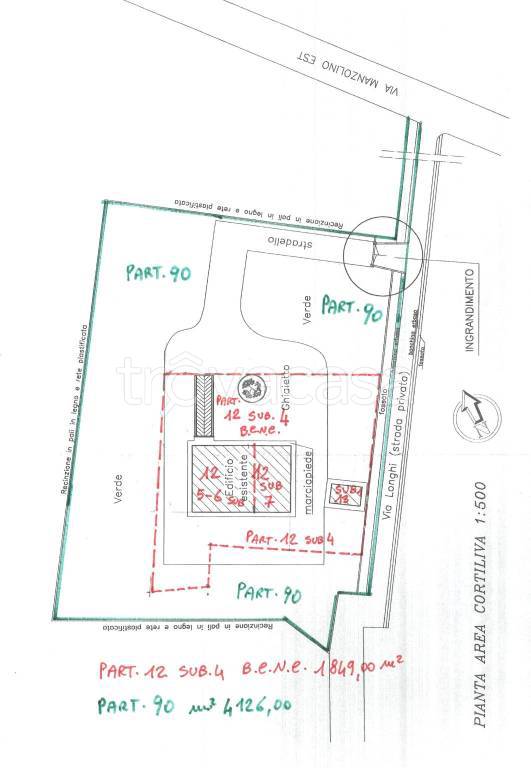
IMMOBILI VENDUTI SEPARATAMENTE IN ASTA TELEMATICA LOTTO 1 Prezzo base € 151.000,00 Offerta minima € 113.250,00 Autorimessa al p.S1 e circostante terreno con piscina LOTTO 2 Prezzo base € 392.000,00 Offerta minima € 294.000,00 Abitazione in villino co […]
