Valutazione immobiliare indipendente, accurata e gratuita
L'Opinione di Caasa® per il pentavano in vendita a Castelfranco Emilia in zona Piumazzo a 217.000 € (cod.6572250f)
Secondo Caasa, per il pentavano a Castelfranco Emilia in zona Piumazzo, la richiesta di 217.000 € è significativamente vantaggiosa rispetto agli annunci simili.
Analisi immobiliare
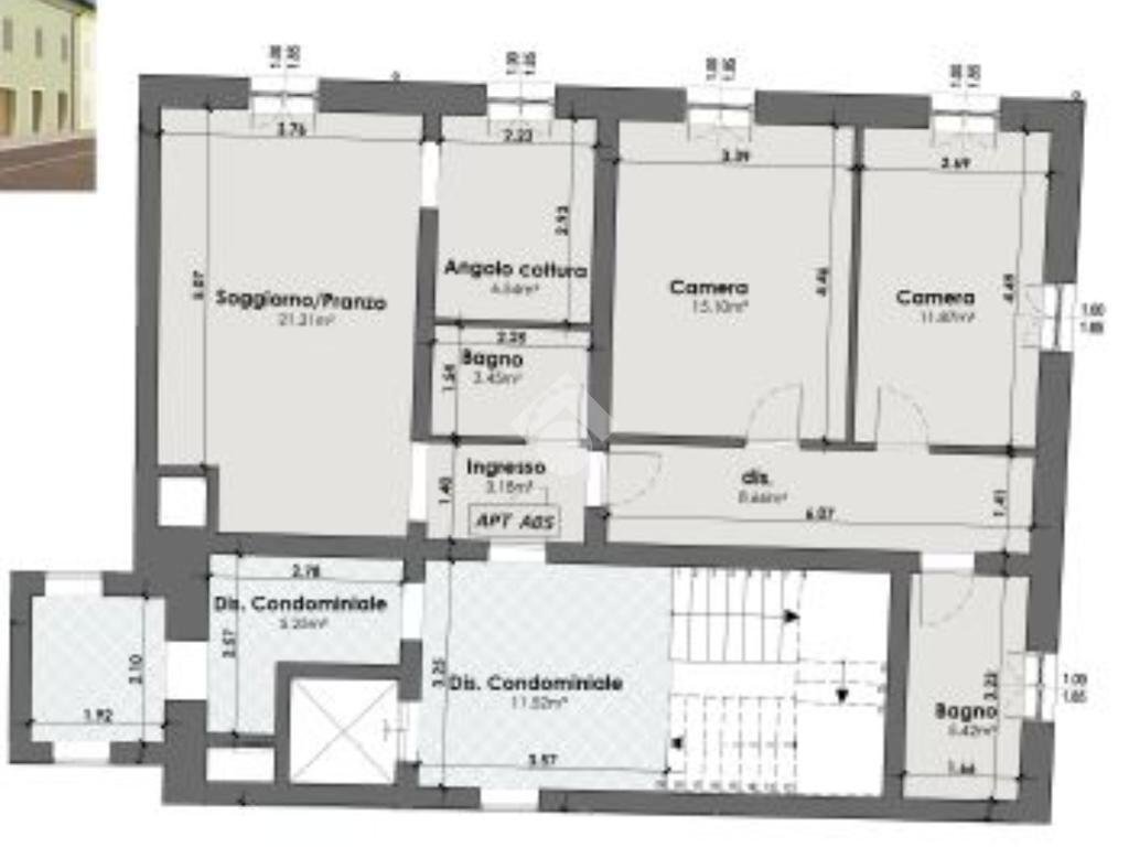
Il pentavano, situato nella zona OMI E5, è proposto in vendita a
217.000 € per una
superficie commerciale di
98 m² e quindi ad un prezzo per metro quadrato pari a
2214 €/m²
.
Tale valore
è decisamente inferiore a quello stimato da Caasa per immobili in vendita simili per tipologia, caratteristiche, classe energetica e localizzati nella stessa zona OMI, che è compreso tra
2.435 €/m² e
2.607 €/m².
La conoscenza con buona approssimazione della localizzazione dell'immobile ha consentito di utilizzare come raffronto i dati medi elaborati esattamente nella zona OMI di appertenenza (FRAZIONE DI PIUMAZZO) per appartamenti (da 1.585 €/m² a 2.510 €/m²). Inoltre, Caasa ha potuto affinare la stima anche con la conoscenza della classe energetica (A+) oltre che di alcune caratteristiche significative come il garage. Per queste ragioni i valori accettabili per l'offerta costituiscono un intervallo abbastanza limitato.
Mercato immobiliare a Castelfranco Emilia
Per quanto riguarda più in generale la città di Castelfranco Emilia, sono presenti al momento più di trenta annunci per
pentavani in vendita (meno del 10% dell'intera provincia)
e il maggior numero di annunci per questa tipologia sono relativi proprio alla zona di Piumazzo.
La dinamica dei prezzi in tutta la città mostra che negli ultimi 6 mesi, i prezzi per pentavani in vendita sono
in forte calo (-11,65%).
NOVITÀ Il risultato che vedi dipende dai dati che siamo riusciti ad estrarre dall'annuncio: ottieni una stima più accuranta di questo immobile, inserendo dati più precisi.
N.B. L'Opinione di Caasa® è un servizio sperimentale realizzato tramite tecniche di Intelligenza Artificiale, fornito senza alcuna garanzia di correttezza e completezza. Leggi il disclaimer o segnalaci un problema.
IMMAGINI
IN SINTESI
PROPOSTO DA:
VALEDIPIU' SRL
DESCRIZIONE
con garage con termocondizionamento
in pieno centro e comodo a tutti i servizi del Paese, Nuovo intervento edilizio e di risanamento conservativo in Classe A. L’intervento tratta due fabbricati sviluppati su tre piani fuori terra e sarà caratterizzato da diverse tipologie, ciascuna con particolari e peculiari unici. Gli immobili potranno essere personalizzati in tutte le finiture interne. Dotati di riscaldamento a pavimento, predisposizione dell’impianto di raffrescamento autonomo , impianto fotovoltaico, infissi con scuri in legno, ventilazione meccanica e tutte le finiture di un immobile in classe A e di impronta moderna. Per fissare una visita o per maggiori informazioni potete contattarci via mail a Potete trovarci anche su WHATSAPP al numero 3207694222 e vieni a scoprire l’intera progettazione! Ogni unità abitativa sarà dotata di un'autorimessa di proprietà. Se decidi di vendere il TUO immobile con NOI, in esclusiva, tra i nostri servizi offriamo GRATUITAMENTE: Valutazione del reale prezzo di mercato con TecnoValore: software esclusivo in dotazione alle agenzie del GRUPPO che ci supporta nella definizione del prezzo degli immobili, grazie all'applicazione di metodologie statistiche che elaborano i dati su compravendite effettuate nella zona di interesse


