Valutazione immobiliare indipendente, accurata e gratuita
L'Opinione di Caasa® per l'appartamento in vendita a Castelfranco Emilia in zona Piumazzo a 134.400 € (cod.6571c21e)
Secondo Caasa, per l'appartamento a Castelfranco Emilia in zona Piumazzo, la richiesta di 134.400 € è leggermente vantaggiosa rispetto agli annunci simili.
Analisi immobiliare
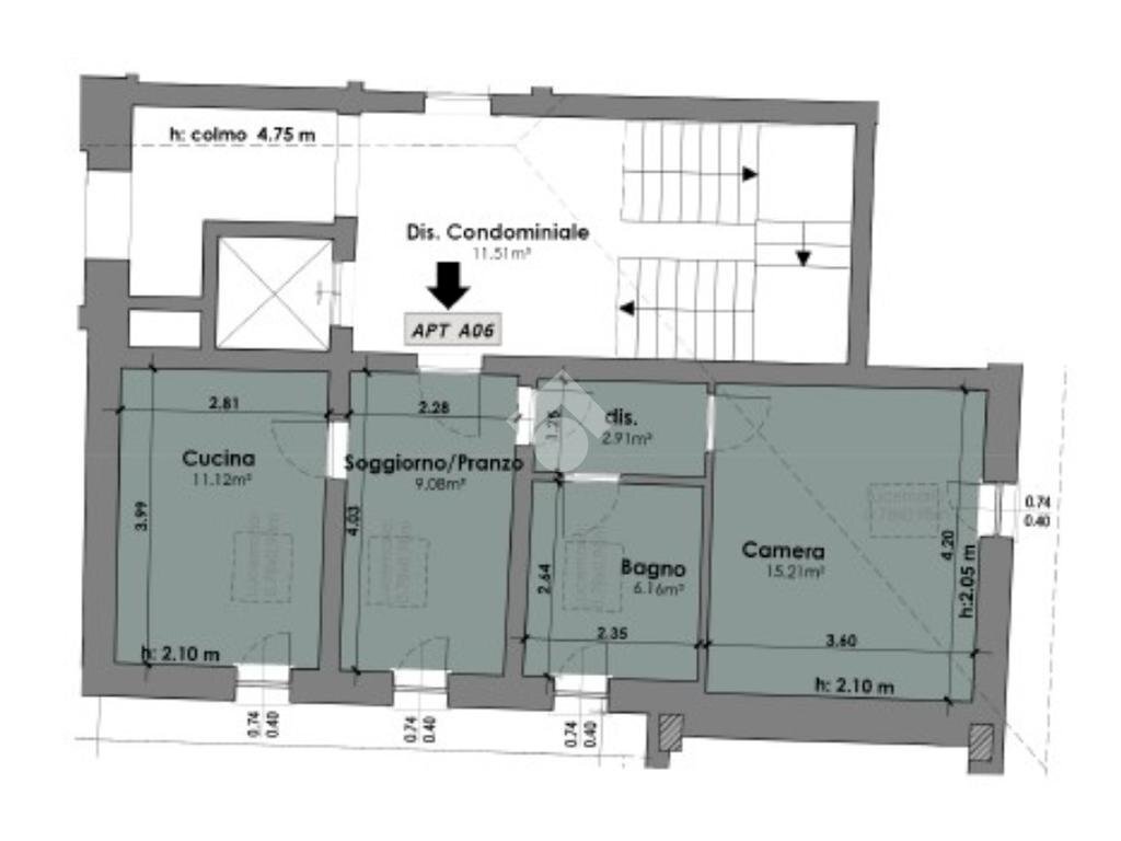
L'appartamento, situato nella zona OMI E5, è proposto in vendita a
134.400 € per una
superficie commerciale di
58 m² e quindi ad un prezzo per metro quadrato pari a
2317 €/m²
.
Questo prezzo
è un po' più basso di quello stimato da Caasa per immobili in vendita simili per tipologia, caratteristiche, classe energetica e localizzati nella stessa zona OMI, che è compreso tra
2.532 €/m² e
2.797 €/m².
La conoscenza con buona approssimazione della localizzazione dell'immobile ha consentito di utilizzare come raffronto i dati medi elaborati esattamente nella zona OMI di appertenenza (FRAZIONE DI PIUMAZZO) per appartamenti (da 1.585 €/m² a 2.510 €/m²) e per bivani (da 2.070 €/m² a 2.555 €/m²). Inoltre, Caasa ha potuto affinare la stima anche con la conoscenza della classe energetica (A+) oltre che di alcune caratteristiche significative come il garage. Per i motivi esposti è possibile considerare un intervallo di valori accettabili per l'offerta abbastanza limitato.
Mercato immobiliare a Castelfranco Emilia
Per quanto riguarda più in generale la città di Castelfranco Emilia, sono presenti al momento oltre 500 annunci per
appartamenti in vendita (meno del 5% dell'intera provincia)
e il maggior numero di annunci per questa tipologia sono relativi proprio alla zona di Piumazzo.
La richiesta media nella zona dove sorge l'appartamento (Piumazzo) è pari a
2.080 €/m² e ne fa la più pregiata della città .
Possiamo inoltre considerare che in tutta la città negli ultimi 6 mesi, i prezzi per appartamenti in vendita sono
in debole aumento (+1,37%).
NOVITÀ Il risultato che vedi dipende dai dati che siamo riusciti ad estrarre dall'annuncio: ottieni una stima più accuranta di questo immobile, inserendo dati più precisi.
N.B. L'Opinione di Caasa® è un servizio sperimentale realizzato tramite tecniche di Intelligenza Artificiale, fornito senza alcuna garanzia di correttezza e completezza. Leggi il disclaimer o segnalaci un problema.
IMMAGINI
IN SINTESI
PROPOSTO DA:
VALEDIPIU' SRL
DESCRIZIONE
con garage con termocondizionamento
L'agenzia affiliata Tecnocasa di Piumazzo, frazione di Modena, propone in vendita a Piumazzo, in pieno centro e comodo a tutti i servizi del Paese, Nuovo intervento edilizio e di risanamento conservativo in Classe A. L’intervento tratta due fabbricati sviluppati su tre piani fuori terra e sarà caratterizzato da diverse tipologie, ciascuna con particolari e peculiari unici. Gli immobili potranno essere personalizzati in tutte le finiture interne. Dotati di riscaldamento a pavimento, predisposizione dell’impianto di raffrescamento autonomo , impianto fotovoltaico, infissi con scuri in legno, ventilazione meccanica e tutte le finiture di un immobile in classe A e di impronta moderna. Ogni unità abitativa è dotata di un’autorimessa di proprietaà. Per fissare una visita o per maggiori informazioni potete contattarci via mail a Potete trovarci anche su WHATSAPP al numero 3207694222 e vieni a scoprire l’intera progettazione! Se decidi di vendere il TUO immobile con NOI, in esclusiva, tra i nostri servizi offriamo GRATUITAMENTE: Valutazione del reale prezzo di mercato con TecnoValore: software esclusivo in dotazione alle agenzie del GRUPPO che ci supporta nella definizione del prezzo degli immobili, grazie all'applicazione di metodologie statistiche che elaborano i dati su compravendite effettuate nella zona di interesse


