Valutazione immobiliare indipendente, accurata e gratuita
L'Opinione di Caasa® per l'appartamento in vendita a Castelfranco Emilia a 145.000 € (cod.654e27af)
Secondo Caasa, per l'appartamento in vendita a Castelfranco Emilia, la richiesta di 145.000 € è significativamente vantaggiosa rispetto agli annunci simili.
Analisi immobiliare
L'appartamento, situato nella zona OMI B2, è proposto in vendita a
145.000 € per una
superficie commerciale di
108 m² e quindi ad un prezzo per metro quadrato pari a
1342 €/m²
.
Tale valore
è decisamente inferiore a quello stimato da Caasa per immobili in vendita simili per tipologia, caratteristiche, classe energetica e zona, che è compreso tra
1.709 €/m² e
1.873 €/m².
Vista la posizione dell'appartamento si sono utilizzati in raffronto i valori medi nelle zone limitrofe . Ad affinare la stima ha contribuito anche la classe energetica (G) oltre alla conoscenza di alcune caratteristiche significative come il garage o la disponibilità di una cantina. Per i motivi esposti i valori accettabili per l'offerta costituiscono un intervallo relativamente limitato.
Mercato immobiliare a Castelfranco Emilia
Per quanto riguarda più in generale la città di Castelfranco Emilia, sono presenti al momento quasi 500 annunci per
appartamenti in vendita (meno del 5% dell'intera provincia)
e il maggior numero di annunci per questa tipologia sono relativi alla zona di Piumazzo.
La dinamica dei prezzi in tutta la città mostra che negli ultimi 6 mesi, i prezzi per appartamenti in vendita sono
sostanzialmente stabili (+0,87%).
NOVITÀ Il risultato che vedi dipende dai dati che siamo riusciti ad estrarre dall'annuncio: ottieni una stima più accuranta di questo immobile, inserendo dati più precisi.
N.B. L'Opinione di Caasa® è un servizio sperimentale realizzato tramite tecniche di Intelligenza Artificiale, fornito senza alcuna garanzia di correttezza e completezza. Leggi il disclaimer o segnalaci un problema.
IMMAGINI
IN SINTESI
PROPOSTO DA:
Stimax Immobiliare
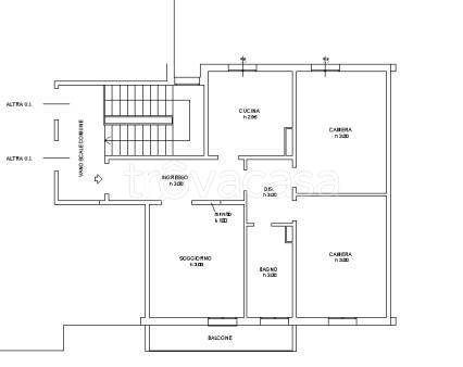
DESCRIZIONE
con posto auto con garage con terrazza con balcone senza ascensore
NOSTRA ESCLUSIVA A CASTELFRANCO EMILIA: IN OTTIMO CONTESTO RESIDENZIALE DI 9 UNITA' ABITATIVE A SOLI 50MT DALLA ZONA PEDONALE DEL CENTRO STORICO, PROPONIAMO APPARTAMENTO TRILOCALE AL TERZO ED ULTIMO PIANO SENZA ASCENSORE COSI' COMPOSTO: INGRESSO, AMPIO SOGGIORNO CON BALCONE, CUCINA SEPARATA ED ABITABILE, DIS. NOTTE, DUE AMPIE CAMERE DA LETTO ENTRAMBE MATRIMONIALI E BAGNO. CALDAIA A CONDENSAZIONE NUOVA. CLIMATIZZATORE CALDO/FREDDO. ZANZARIERE. NO ASCENSORE. GARAGE DOPPIO A PIANO TERRA CON APERTURA ELETTRICA. CANTINA AL PIANO TERRA. LIBERO A ROGITO. GUARDA IL VIDEO DELL'IMMOBILE SUL NOSTRO SITO WWW.STIMAX.IT NELLA SEZIONE IMMOBILI IN EVIDENZA O DIGITANDO IL CODICE ACA71 PER INFO TELEFONARE. 348.8520920 RICHIESTA 145.000 EURO

