Valutazione immobiliare indipendente, accurata e gratuita
Appartamento in vendita a Castelfranco Emilia in zona Panzano a 280.000 € (cod.64f6dbc7)
Caasa non ha sufficienti informazioni per commentare l'appartamento a Castelfranco Emilia in zona Panzano - 64f6dbc7.
	Analisi immobiliare
	
	I dati in posseso di Caasa per quest'immobile sono insufficienti, inaffidabili o contraddittori per proporre un'analisi attendibile.
	
	Mercato immobiliare a Castelfranco Emilia
	
	Per quanto riguarda più in generale la città di Castelfranco Emilia, sono presenti al momento quasi 500 annunci per 
		appartamenti in vendita (meno del 5% dell'intera provincia) 
	
	 e il maggior numero di annunci per questa tipologia sono relativi alla zona di Piumazzo, mentre la zona di Panzano risulta molto meno attiva considerando il numero di annunci presenti.
	
	
	La richiesta media nella zona dove sorge l'appartamento (Panzano) è pari a 
		2.120 €/m² e ne fa la più pregiata della città .
	
	
	La dinamica dei prezzi in tutta la città mostra che negli ultimi 6 mesi, i prezzi per appartamenti in vendita sono 
		in sostanziale aumento (+5,45%).
	
	
	
NOVITÀ Il risultato che vedi dipende dai dati che siamo riusciti ad estrarre dall'annuncio: ottieni una stima più accuranta di questo immobile, inserendo dati più precisi.
N.B. L'Opinione di Caasa® è un servizio sperimentale realizzato tramite tecniche di Intelligenza Artificiale, fornito senza alcuna garanzia di correttezza e completezza. Leggi il disclaimer o segnalaci un problema.
IMMAGINI
IN SINTESI
PROPOSTO DA:
IMMOBILIARE MEDAGLIE D'ORO S.R.L.
DESCRIZIONE
di recente ristrutturazione con posto auto con garage con giardino con terrazza con cantina con balcone con angolo cottura di recente ristrutturazione di recente costruzione con cortile
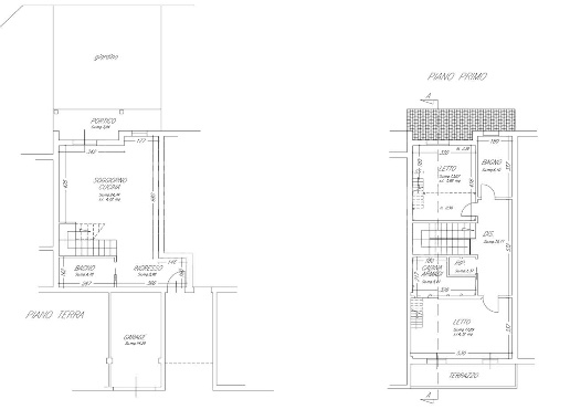
VD4700 A circa 5Km da Modena Est, località PANZANO di Castelfranco Emilia, proponiamo in vendita appartamento indipendente su più livelli, tipo Villetta a schiera, con piccolo giardino privato. Contesto di recente costruzione edificato su iniziativa pubblica del Comune di Castelfranco Emilia in diritto superficiario anno 2008/2009. La porzione in vendita è stata ristrutturata completamente nel 2019 con grandi migliorie nelle finiture interne e degli impianti passando così l'efficienza energetica in CLASSE B. La casa è così composta: porzione di centro di una schiera di appartamenti con ingresso indipendente, ingresso, soggiorno con angolo cottura a vista, piccola dispensa sottoscala e bagno lavanderia a servizio del ambiente giorno, area cortiliva privata, scala a giorno in muratura per salire al piano notte con sovrastante grande disimpegno (capiente per armadio 10 ante), un ripostiglio, 2 ampie camere da letto matrimoniali. Un grande bagno completa l'ambiente notte al piano primo. NOTA SULLE STANZE DA LETTO : Una delle due camere con balcone, cabina armadi e soppalco abitabile e utilizzabile come sgombero/studio/pc; l'altra camera matrimoniale con sovrastante spazioso soppalco abitabile per collocare ad esempio un letto matrimoniale, un vero e proprio studio o una sala giochi. Un garage di circa 16mq auto di qualsiasi dimensione, posto auto libero in cortile. Zanzariere, climatizzazione Daikin, caldaia a condensazione, impianto fotovoltaico 2Kw con scambio sul posto, possibilità per gli acquirenti di integrare l'impianto con l'acquisto di una batteria di accumulo per una ulteriore efficientamento energetico Immobile attualmente in CLASSE B libero a rogito Richiesta € 280.000 Possibilità di negoziare eventuali arredi a parte. Referente Fella Alessandro Cell 3294152369
 
                               
                               
                               
                               
                               
                               
                               
                               
                               
                               
                               
                               
                               
                               
                              

