Valutazione immobiliare indipendente, accurata e gratuita
Casa indipendente in vendita a Carpi in zona Cibeno Pile a 530.000 € (cod.65673fff)
Caasa non ha sufficienti informazioni per commentare la casa indipendente a Carpi in zona Cibeno Pile - 65673fff.
Analisi immobiliare
I dati in posseso di Caasa per quest'immobile sono insufficienti, inaffidabili o contraddittori per proporre un'analisi attendibile.
Mercato immobiliare a Carpi
Per quanto riguarda più in generale la città di Carpi, sono presenti al momento ben circa mille annunci per
case indipendenti in vendita (quasi il 20% dell'intera provincia)
e il maggior numero di annunci per questa tipologia sono relativi alla zona di Centro Storico, mentre la zona di Cibeno Pile risulta molto meno attiva considerando il numero di annunci presenti.
La richiesta media nella zona dove sorge la casa indipendente (Cibeno Pile pressi Via Due Ponti) è pari a
1.825 €/m², molto vicina ai valori della zona Budrione che sono i più alti della città .
La dinamica dei prezzi in tutta la città mostra che negli ultimi 6 mesi, i prezzi per case indipendenti in vendita sono
in leggero aumento (+2,84%).
NOVITÀ Il risultato che vedi dipende dai dati che siamo riusciti ad estrarre dall'annuncio: ottieni una stima più accuranta di questo immobile, inserendo dati più precisi.
N.B. L'Opinione di Caasa® è un servizio sperimentale realizzato tramite tecniche di Intelligenza Artificiale, fornito senza alcuna garanzia di correttezza e completezza. Leggi il disclaimer o segnalaci un problema.
IMMAGINI
IN SINTESI
PROPOSTO DA:
AGENZIA FARINI SRL
DESCRIZIONE
di nuova costruzione con posto auto con garage con giardino di nuova costruzione con angolo cottura
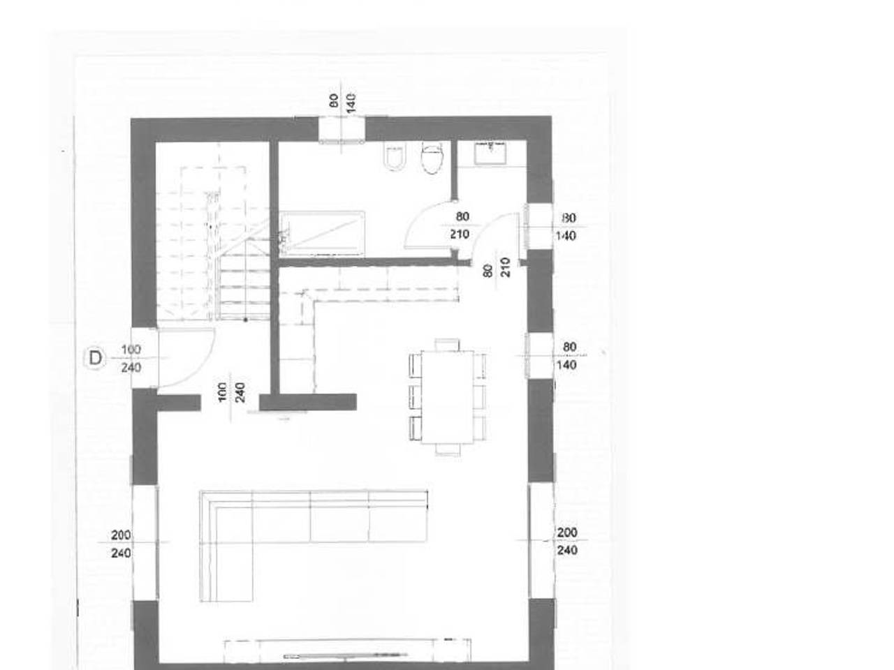
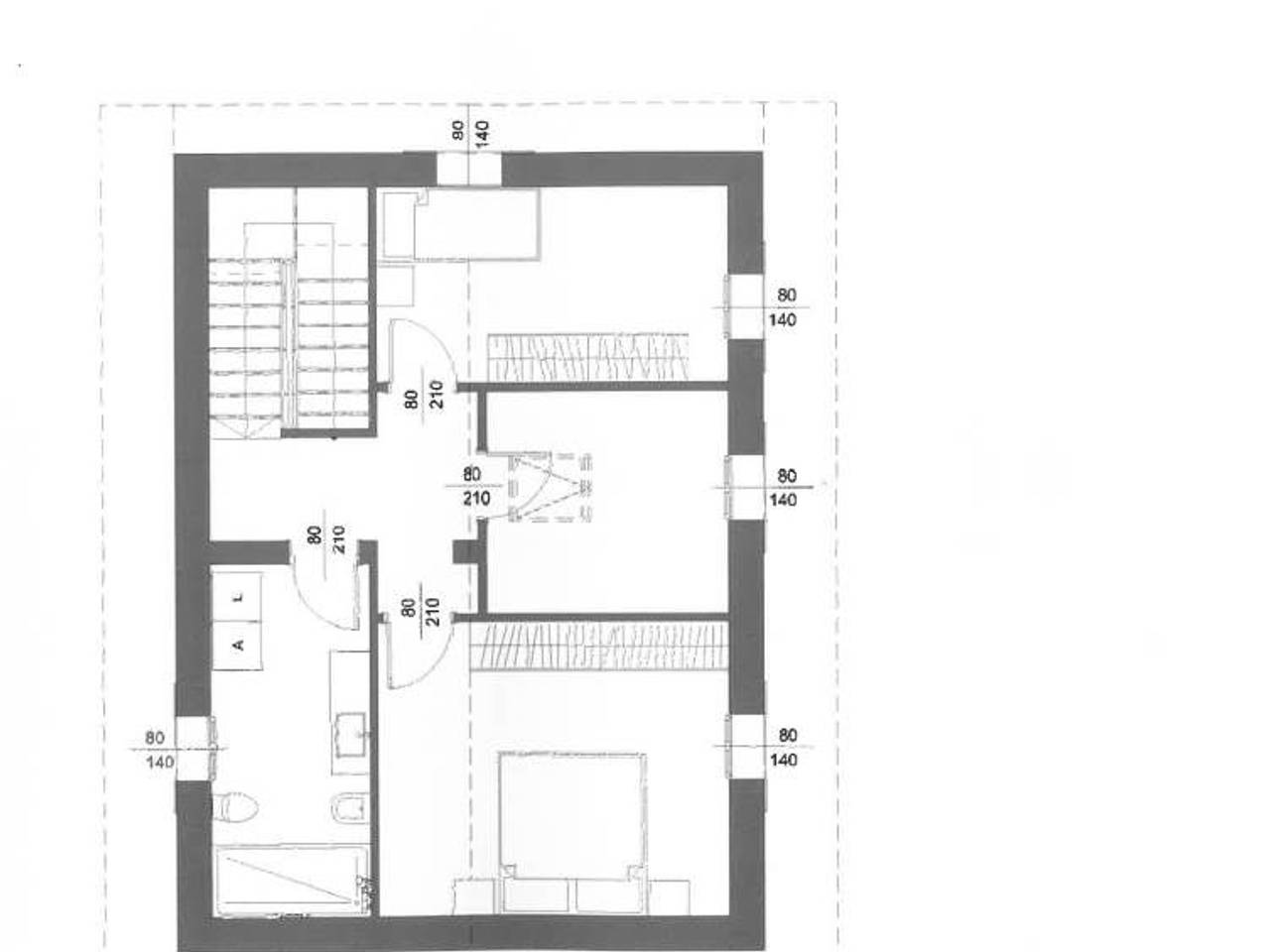
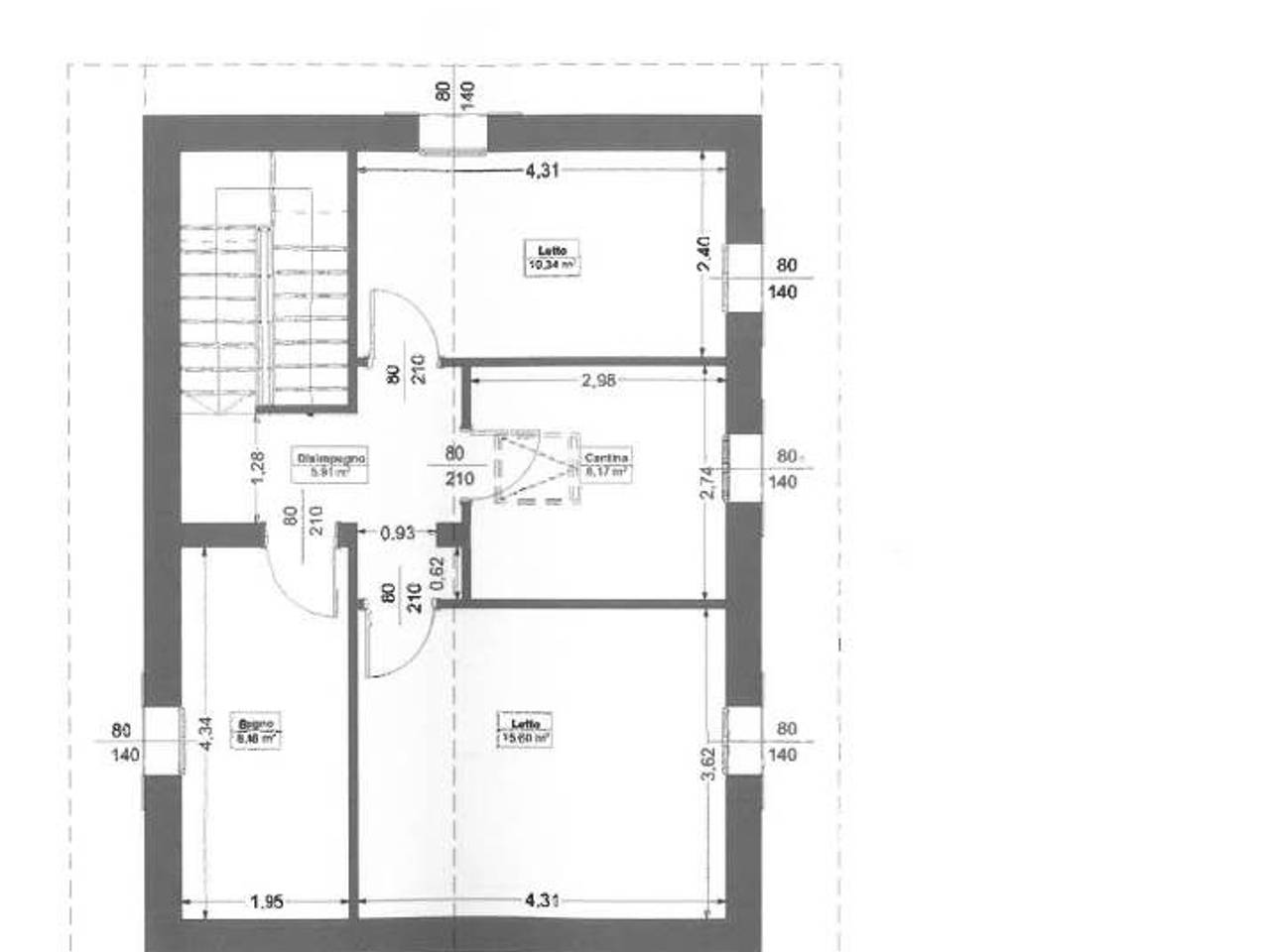
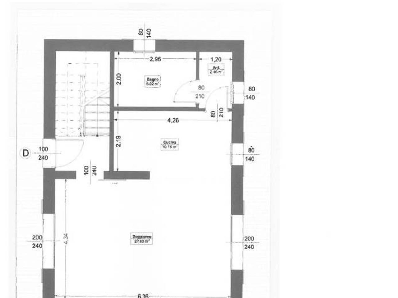
COD. 2919 VENDESI VILLA IN COSTRUZIONE IN ZONA CIBENO In una zona tranquilla e immersa nel verde, situata nelle prima periferia di Carpi e a circa 3 km dal Centro storico nel quartiere Cibeno, proponiamo villetta a schiera con giardino privato. La posizione, pur offrendo riservatezza e quiete, risulta comodamente servita e facilmente raggiungibile. L'abitazione si sviluppa su due livelli principali, oltre a una soffitta vivibile, e presenta ambienti luminosi e ben organizzati. Piano terra – Zona giorno • Ingresso indipendente • Open space con sala e angolo cottura • Bagno di servizio con antibagno • Vano scala di collegamento ai piani superiori Primo piano – Zona notte • Due camere da letto ben dimensionate • Bagno con finestra • Vano scala di collegamento al piano superiore • Disimpegno • Vano accessorio Completano la proprietà un posto auto e un garage a piano terra di 17,62 Mq Prezzo richiesto: Eu. 530.100



