Valutazione immobiliare indipendente, accurata e gratuita
Casa indipendente in vendita a Carpi in zona Quartirolo a 432.000 € (cod.65295b2b)
Caasa non ha sufficienti informazioni per commentare la casa indipendente a Carpi in zona Quartirolo - 65295b2b.
Analisi immobiliare
I dati in posseso di Caasa per quest'immobile sono insufficienti, inaffidabili o contraddittori per proporre un'analisi attendibile.
Mercato immobiliare a Carpi
Per quanto riguarda più in generale la città di Carpi, sono presenti al momento ben circa mille annunci per
case indipendenti in vendita (quasi il 20% dell'intera provincia)
e il maggior numero di annunci per questa tipologia sono relativi alla zona di Centro Storico, mentre nella zona di Quartirolo è presente un numero significativamente inferiore di annunci.
La richiesta media nella zona dove sorge la casa indipendente (Quartirolo) è pari a
1.735 €/m², molto vicina ai valori della zona Cibeno Pile che sono i più alti della città .
La dinamica dei prezzi in tutta la città mostra che negli ultimi 6 mesi, i prezzi per case indipendenti in vendita sono
in sostanziale aumento (+5,30%).
NOVITÀ Il risultato che vedi dipende dai dati che siamo riusciti ad estrarre dall'annuncio: ottieni una stima più accuranta di questo immobile, inserendo dati più precisi.
N.B. L'Opinione di Caasa® è un servizio sperimentale realizzato tramite tecniche di Intelligenza Artificiale, fornito senza alcuna garanzia di correttezza e completezza. Leggi il disclaimer o segnalaci un problema.
IMMAGINI
IN SINTESI
PROPOSTO DA:
Immobiliare blu
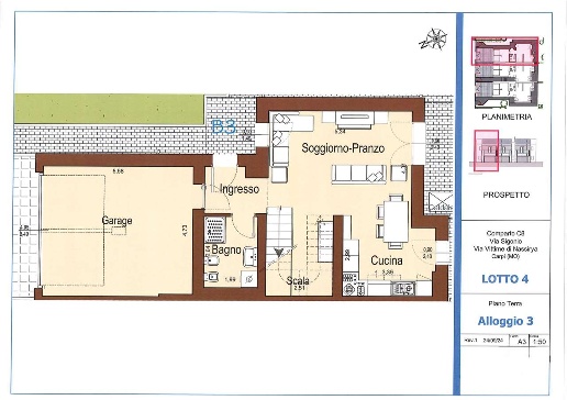
DESCRIZIONE
con termocondizionamento con climatizzazione
BLU GROUP SERVIZI IMMOBILIARI presenta nel quartiere Meloni di Quartirolo di Carpi nuovo comparto di due palazzine da 5 unità ciascuna e 3 villette a schiera. Disponibili maisonette, appartamenti con due camere da letto (alcune tipologie con doppio servizio) e villette a schiera. Consegna fine 2027. Principali caratteristiche: - STRUTTURE ANTISISMICHE struttura antisismica approvata con Decreto Ministeriale 17 gennaio 2018 - aggiornamento delle «norme tecniche per le costruzioni» - “Zona 2” - ISOLAMENTO TERMICO Gli isolamenti impiegati sono di ottima qualità, già in fase di progettazione vengono studiati i sistemi migliori per eliminare i ponti termici - ISOLAMENTO ACUSTICO materiali isolanti impiegati appositamente per attenuare considerevolmente i rumori provenienti dall’esterno, ottemperando a quanto prescritto dalle normative e permettendo un comfort acustico a livelli eccellenti. Per contribuire all’isolamento acustico tutti i serramenti sono in grado di abbattere notevolmente i rumori. - FONTI DI ENERGIA ALTERNATIVA Tutte le villette sono dotate di impianti fotovoltaici personali da circa 5 kwatt ciascuna. Gli appartamenti hanno impianto fotovoltaico e pannelli solari condominiali. - ECOTECH è il metodo costruttivo utilizzato: unisce tecnologie di ultima generazione ad alto risparmio energetico con la sicurezza antisismica. Gli APPARTAMENTI sono dotati di un impianto condominiale di riscaldamento, costituito da un generatore ibrido ad alta efficienza, funzionante a gas ed energia elettrica. Il raffrescamento è autonomo e predisposto per ogni unità. Il riscaldamento è realizzato a pannelli radianti a pavimento. Il sistema ibrido utilizza anche l’energia elettrica solare dell’impianto fotovoltaico per la produzione di acqua calda sanitaria e riscaldamento. Sarà integrato dal sistema a gas metano nei periodi di mancata produzione del fotovoltaico. Le villette hanno un sistema autonomo FULL ELECTRIC, con riscaldamento a pavimento e raffrescamento tramite split. Tutte le unità presentano inoltre da capit[…]

