Valutazione immobiliare indipendente, accurata e gratuita
Appartamento in vendita a Carpi in zona Cortile a 445.000 € (cod.65055c96)
Caasa non ha sufficienti informazioni per commentare l'appartamento in vendita a Carpi in zona Cortile - 65055c96.
Analisi immobiliare
I dati in posseso di Caasa per quest'immobile sono insufficienti, inaffidabili o contraddittori per proporre un'analisi attendibile.
Mercato immobiliare a Carpi
Per quanto riguarda più in generale la città di Carpi, sono presenti al momento ben oltre mille annunci per
appartamenti in vendita (quasi il 20% dell'intera provincia)
e il maggior numero di annunci per questa tipologia sono relativi alla zona di Centro Storico, mentre la zona di Cortile risulta molto meno attiva considerando il numero di annunci presenti.
La richiesta media nella zona dove sorge l'appartamento (Cortile pressi Via Tintoretto) è pari a
1.735 €/m², molto vicina ai valori della zona Santa Croce che sono i più alti della città .
Possiamo inoltre considerare che in tutta la città negli ultimi 6 mesi, i prezzi per appartamenti in vendita sono
in debole aumento (+1,71%).
NOVITÀ Il risultato che vedi dipende dai dati che siamo riusciti ad estrarre dall'annuncio: ottieni una stima più accuranta di questo immobile, inserendo dati più precisi.
N.B. L'Opinione di Caasa® è un servizio sperimentale realizzato tramite tecniche di Intelligenza Artificiale, fornito senza alcuna garanzia di correttezza e completezza. Leggi il disclaimer o segnalaci un problema.
IMMAGINI
IN SINTESI
PROPOSTO DA:
Affiliato Tecnocasa: AGENZIA CARPICENTRO SRL
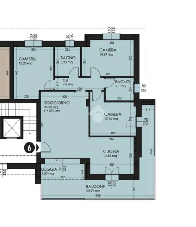
DESCRIZIONE
di nuova costruzione con posto auto con garage con terrazza con balcone con cucina abitabile con ascensore di nuova costruzione con cortile
Nel cuore della zona Berengario, tra case singole, parchi e servizi, sorgerà una nuova elegante palazzina di sole sei unità abitative con garage al piano terra. L'attico si trova al terzo piano, è servito da ascensore, e si compone di ingresso in soggiorno con cucina abitabile e accesso al terrazzo esposto a est. Il reparto notte comprende tre camere da letto, due bagni e un ulteriore balcone. Al piano terra è possibile acquistare un garage da scegliere in base a metratura e posizione desiderate, oltre a un eventuale posto auto nel cortile condominiale (fino ad esaurimento disponibilità). L'immobile potrà essere personalizzato secondo le proprie esigenze, con finiture di pregio sia interne che esterne. Grazie alle moderne tecnologie costruttive, l'edificio raggiungerà la garantendo elevati standard di risparmio energetico. Per ogni informazione : 059650521 numero attivo anche come whatsapp



