Valutazione immobiliare indipendente, accurata e gratuita
Ufficio in affitto a Carpi in zona Centro Storico (cod.658aa8f5)
Caasa non ha sufficienti informazioni per commentare l'ufficio in affitto a Carpi in zona Centro Storico - 658aa8f5.
Analisi immobiliare
I dati in posseso di Caasa per quest'immobile sono insufficienti, inaffidabili o contraddittori per proporre un'analisi attendibile.
Mercato immobiliare a Carpi
Per quanto riguarda più in generale la città di Carpi, sono presenti al momento più di cento annunci per
uffici in affitto (quasi il 20% dell'intera provincia)
e il maggior numero di annunci per questa tipologia sono relativi proprio alla zona di Centro Storico.
Per quanto riguarda la richiesta media in zona Centro Storico, dove sorge l'ufficio, essa è pari a circa
10,1 €/m² mese per uffici in affitto.
Relativamente alla dinamica dei prezzi, possiamo dire che negli ultimi 6 mesi i prezzi medi in tutta la città per uffici in affitto sono
in leggero aumento (+2,94%).
NOVITÀ Il risultato che vedi dipende dai dati che siamo riusciti ad estrarre dall'annuncio: ottieni una stima più accuranta di questo immobile, inserendo dati più precisi.
N.B. L'Opinione di Caasa® è un servizio sperimentale realizzato tramite tecniche di Intelligenza Artificiale, fornito senza alcuna garanzia di correttezza e completezza. Leggi il disclaimer o segnalaci un problema.
IMMAGINI
IN SINTESI
PROPOSTO DA:
Affiliato Tecnocasa: STUDIO MYRICAE S.R.L.
DESCRIZIONE
da ristrutturare con termocondizionamento da ristrutturare
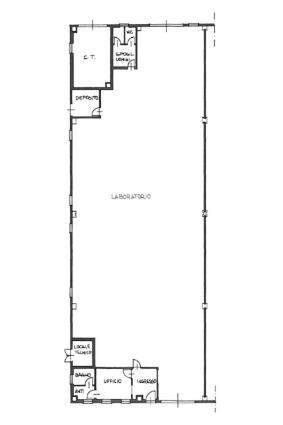
COSA SAPERE DELL'IMMOBILE Proponiamo in locazione capannone a schiera d’angolo di 550 mq. circa calpestabili al piano terra oltre a soppalchi di 90 mq. circa costruito nei primi anni 90 e facente parte di una delle schiere di capannoni tra le più recenti della zona artigianale di Cibeno. L’immobile gode di buona visibilità, in quanto si trova di fronte al supermercato MD Discount. DESCRIZIONE E PARTICOLARITA' L’immobile è così composto: al piano terra 550 mq. circa calpestabili costituiti da ampio vano ad uso laboratorio con altezza interna di 5,60 m., portone carrabile fronte strada, portone carrabile sul retro, due bagni con antibagno/spogliatoio, piccolo locale ad uso deposito, ufficio con ingresso e bagno con antibagno, ampia centrale termica e cabina elettrica; al primo piano un soppalco fronte strada ed uno sul retro ciascuno di 45 mq. circa calpestabili. Il capannone è molto luminoso, gode di buona visibilità ed attualmente è provvisto esclusivamente di impianto di riscaldamento nella zona uffici. La disponibilità dei locali è immediata. UBICAZIONE E CONTESTO Il fabbricato è ubicato nella zona artigianale di Cibeno, che è identificabile come la più apprezzata di Carpi soprattutto per l’insediamento di aziende di medie e piccole dimensioni, in quanto avente caratteristiche particolarmente adatte alle esigenze di attività imprenditoriali ed artigianali di queste dimensioni. Il capannone si trova davanti al supermercato MD Discount ed è ubicato a 2 km. di distanza dal centro storico di Carpi ed a 6 km. dal casello dell’Autostrada A22 del Brennero

