Valutazione immobiliare indipendente, accurata e gratuita
L'Opinione di Caasa® per la casa indipendente in vendita a Bomporto in zona Sorbara a 395.000 € (cod.6575d71d)
Secondo Caasa, per la casa indipendente a Bomporto in zona Sorbara, la richiesta di 395.000 € è significativamente svantaggiosa rispetto agli annunci simili.
Analisi immobiliare
La casa indipendente, situata nella zona OMI E6, è proposta in vendita a
395.000 € per una
superficie commerciale di
202 m² e quindi ad un prezzo per metro quadrato pari a
1955 €/m²
.
Tale prezzo
è meno conveniente di quello stimato da Caasa per immobili in vendita simili per tipologia e caratteristiche e localizzati nella stessa zona OMI, che è compreso tra
1.562 €/m² e
1.737 €/m².
Grazie alla conoscenza con buona approssimazione della localizzazione dell'immobile, è stato possibile utilizzare come raffronto i dati medi elaborati esattamente nella zona OMI di appertenenza (FRAZIONE SORBARA) per case indipendenti (da 950 €/m² a 1.990 €/m²) e per case semindipendenti (da 775 €/m² a 1.990 €/m²). Anche se Caasa non è riuscita a determinare la classe energetica, ad affinare la stima hanno contribuito anche lo stato dell'immobile (di nuova costruzione) e la presenza di alcune caratteristiche significative come il garage. Per queste ragioni i valori accettabili per l'offerta costituiscono un intervallo relativamente limitato.
Mercato immobiliare a Bomporto
Per quanto riguarda più in generale il comune di Bomporto, sono presenti al momento più di 150 annunci per
case indipendenti in vendita (meno del 5% dell'intera provincia)
e il maggior numero di annunci per questa tipologia sono relativi proprio alla zona di Sorbara.
La richiesta media nella zona dove sorge la casa indipendente (Sorbara) è pari a
1.425 €/m² che la rende la più economica del comune .
Relativamente alla dinamica dei prezzi, possiamo dire che negli ultimi 6 mesi i prezzi medi in tutto il comune per case indipendenti in vendita sono
in sostanziale aumento (+5,22%).
NOVITÀ Il risultato che vedi dipende dai dati che siamo riusciti ad estrarre dall'annuncio: ottieni una stima più accuranta di questo immobile, inserendo dati più precisi.
N.B. L'Opinione di Caasa® è un servizio sperimentale realizzato tramite tecniche di Intelligenza Artificiale, fornito senza alcuna garanzia di correttezza e completezza. Leggi il disclaimer o segnalaci un problema.
IMMAGINI
IN SINTESI
PROPOSTO DA:
Idea Ca.Se - Carpi
DESCRIZIONE
di nuova costruzione con posto auto con garage con giardino con terrazza di nuova costruzione con angolo cottura senza ascensore
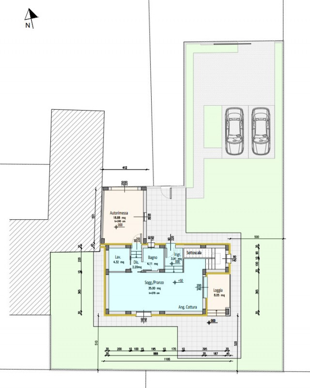
CA247 - PER INFO E APPUNTAMENTI STEFANO 3290643655 Proponiamo in località Sorbara di Bomporto casa singola di nuova costruzione, consegna prevista a primavera/estate del 2026, l'immobile si sviluppa su due livelli per un totale di 165 mq ed è circondato da un'ampia area cortiliva esclusiva di 375 mq libera su 4 lati, ideale per chi cerca privacy, comfort e spazi verdi. Al piano terra si trova un grande e luminoso soggiorno con angolo cottura, loggia esterna per accesso all'area esterna, un bagno, una lavanderia ed accesso diretto all'autorimessa; con scala interna dalla zona giorno si arriva al piano primo nella zona notte composta da tre camere da letto ed un secondo bagno. Ottimo capitolato: impianto fotovoltaico da 8kWp e batterie di accumulo da 15kWh, gli infissi sono realizzati in legnoalluminio della marca WOLF FENSTER, pavimenti/rivestimenti/battiscola ceramiche FLORIM, porte bianche, sanitati IDEAL STANDARD, ecc.. Possibilità di personalizzazione colore esterno e scelta dei pavimenti e rivestimenti





