Valutazione immobiliare indipendente, accurata e gratuita

L'Opinione di Caasa® per l'appartamento in vendita a Savignano sul Rubicone a 189.000 € (cod.64ed0e53)

Secondo Caasa, per l'appartamento in vendita a Savignano sul Rubicone, la richiesta di 189.000 € è equilibrata rispetto agli annunci simili.

Analisi immobiliare
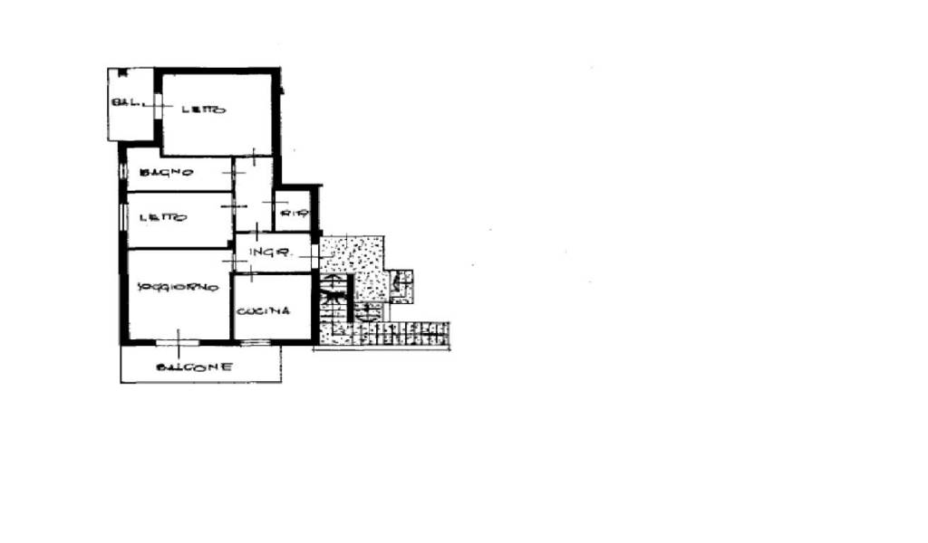
L'appartamento, situato nella zona OMI D1, è proposto in vendita a 189.000 € per una superficie commerciale di 102 m² e quindi ad un prezzo per metro quadrato pari a 1852 €/m² .
Tale valore è molto vicino a quello stimato da Caasa per immobili in vendita simili per tipologia, caratteristiche, classe energetica e zona, che è compreso tra 1.816 €/m² e 1.955 €/m². Vista la posizione dell'appartamento si sono utilizzati in raffronto i valori medi nelle zone limitrofe . Ad affinare la stima ha contribuito anche la classe energetica (F) oltre alla conoscenza di alcune caratteristiche significative come il garage o la disponibilità di una cantina. Per queste considerazioni i valori accettabili per l'offerta costituiscono un intervallo relativamente limitato.

Mercato immobiliare a Savignano sul Rubicone
Per quanto riguarda più in generale la città di Savignano sul Rubicone, sono presenti al momento più di cento annunci per appartamenti in vendita (meno del 5% dell'intera provincia) .

La dinamica dei prezzi in tutta la città mostra che negli ultimi 6 mesi, i prezzi per appartamenti in vendita sono in leggera diminuzione (-2,88%).

NOVITÀ Il risultato che vedi dipende dai dati che siamo riusciti ad estrarre dall'annuncio: ottieni una stima più accuranta di questo immobile, inserendo dati più precisi.

N.B. L'Opinione di Caasa® è un servizio sperimentale realizzato tramite tecniche di Intelligenza Artificiale, fornito senza alcuna garanzia di correttezza e completezza. Leggi il disclaimer o segnalaci un problema.

IMMAGINI

IN SINTESI

Prezzo:
189.000 €
Superficie:
102 m²
Prezzo al m²:
1852 €/m²
Piano:
terra
Bagni:
n.d.
Classe energetica:
F
Città:
Savignano sul Rubicone (FC)
Zona OMI:
D1 (ZONA ARTIGIANALE E RISIDENZIALE)
Indirizzo:
Pubblicato:
mer 8 ottobre 2025

PROPOSTO DA:

Affiliato Tecnorete: STUDIO NEDA SRL - Tecnorete

DESCRIZIONE

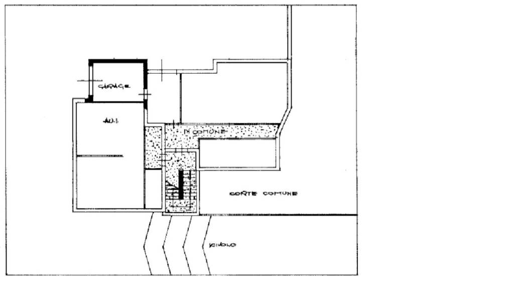
con posto auto con garage con balcone con cantina

SAVIGNANO SUL RUBICONE: nel cuore del quartiere Rio Salto, vicino al parco Nenni e alle scuole, appartamento trilocale al piano rialzato con soggiorno e cucina separata, due camere da letto di cui una matrimoniale di 20mq, bagno e due balconi ampi di 7mq e di 12mq. Al piano seminterrato cantina e garage di 17mq. L'appartamento è dotato di infissi nuovi in pvc. Per maggiori informazioni contattateci al 3701542540 o alla mail fo2r5@tecnorete.it

  • immobiliare.it
  • trovacasa.net
  • idealista.it