Valutazione immobiliare indipendente, accurata e gratuita
Casa indipendente in vendita a Roncofreddo in zona Gualdo a 230.000 € (cod.654ca7b8)
Caasa non ha sufficienti informazioni per commentare la casa indipendente a Roncofreddo in zona Gualdo - 654ca7b8.
Analisi immobiliare
I dati in posseso di Caasa per quest'immobile sono insufficienti, inaffidabili o contraddittori per proporre un'analisi attendibile.
Mercato immobiliare a Roncofreddo
Per quanto riguarda più in generale il comune di Roncofreddo, sono presenti al momento circa cento annunci per
case indipendenti in vendita (meno del 5% dell'intera provincia)
e il maggior numero di annunci per questa tipologia sono relativi proprio alla zona di Gualdo.
La richiesta media nella zona dove sorge la casa indipendente (Gualdo) è pari a
1.465 €/m² e ne fa la più pregiata del comune .
Per quanto riguarda la dinamica dei prezzi, negli ultimi 6 mesi i prezzi medi in tutto il comune per case indipendenti in vendita sono
in sostanziale calo (-5,92%).
NOVITÀ Il risultato che vedi dipende dai dati che siamo riusciti ad estrarre dall'annuncio: ottieni una stima più accuranta di questo immobile, inserendo dati più precisi.
N.B. L'Opinione di Caasa® è un servizio sperimentale realizzato tramite tecniche di Intelligenza Artificiale, fornito senza alcuna garanzia di correttezza e completezza. Leggi il disclaimer o segnalaci un problema.
IMMAGINI
IN SINTESI
PROPOSTO DA:
AG. PASSERINI IMMOBILIARE
DESCRIZIONE
con giardino con posto auto con garage con cantina con terrazza con caminetto senza ascensore con termocondizionamento con riscaldamento autonomo con angolo cottura
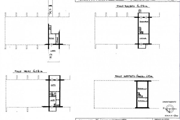
Rif 2431 A cesena, in zona collinare vendiamo villetta a schiera porzione centrale di 140 mq commerciali . La villetta è disposta su 3 livelli con ; garage e taverna piano seminterrato, salotto / cucina con camino, bagno, ripostiglio al piano rialzato, al piano primo due camere matrimoniali con bagno, ed al piano superiore troviamo una stanza hobby con due ripostigli. La villetta manutentata sempre in maniera maniacale è in perfette condizioni con gli spazi adatti ad una famiglia che cerca l' indipendenza con il migliore rapporto qualità/prezzo sul mercato attuale. In più l' immobile presenta ; impianto fotovoltaico 4 kw ( senza accumulo), zanzariere , tende estensibili nelle terrazze e infissi di ultima generazione con doppi vetri e camera di 2 cm. Prezzo richiesto 230.000 Euro Per info e visite Stefano 3487427589 APE D






