Valutazione immobiliare indipendente, accurata e gratuita
L'Opinione di Caasa® per la casa indipendente in vendita a Mercato Saraceno in zona Bora a 310.000 € (cod.65367b71)
Secondo Caasa, per la casa indipendente a Mercato Saraceno in zona Bora, la richiesta di 310.000 € è significativamente svantaggiosa rispetto agli annunci simili.
Analisi immobiliare
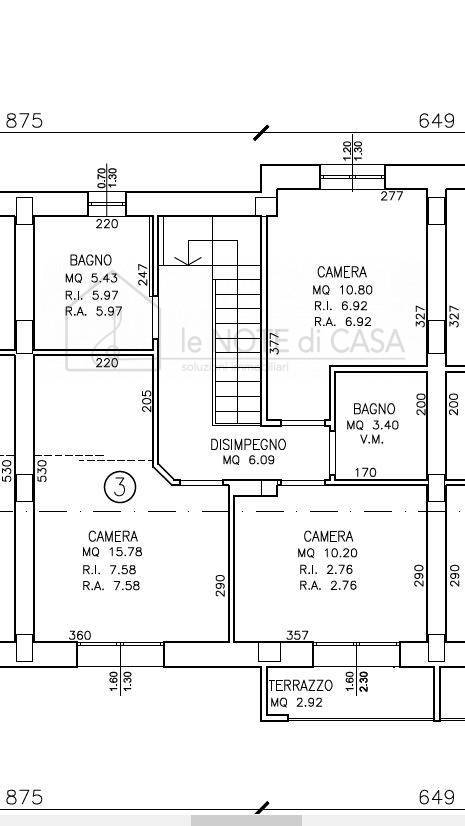
La casa indipendente, situata nella zona OMI E1, è proposta in vendita a
310.000 € per una
superficie commerciale di
140 m² e quindi ad un prezzo per metro quadrato pari a
2214 €/m²
.
Tale prezzo
è meno conveniente di quello stimato da Caasa per immobili in vendita simili per tipologia e caratteristiche e localizzati nella stessa zona OMI, che è compreso tra
1.557 €/m² e
1.714 €/m².
Grazie alla conoscenza con buona approssimazione della localizzazione dell'immobile, è stato possibile utilizzare come raffronto i dati medi elaborati esattamente nella zona OMI di appertenenza (BORA, BACCIOLINO, BIVIO MONTEGELLI, CELLA, TAIBO`, BORGOSTECCHI, MONTECASTELLO) per case indipendenti (da 1.065 €/m² a 1.920 €/m²). Anche se Caasa non è riuscita a determinare la classe energetica, ad affinare la stima ha contribuito anche la presenza di alcune caratteristiche significative come il garage. Per questi motivi i valori accettabili per l'offerta costituiscono un intervallo relativamente limitato.
Mercato immobiliare a Mercato Saraceno
Per quanto riguarda più in generale il comune di Mercato Saraceno, sono presenti al momento più di 150 annunci per
case indipendenti in vendita (meno del 5% dell'intera provincia)
e il maggior numero di annunci per questa tipologia sono relativi proprio alla zona di Bora.
Per quanto riguarda la richiesta media in zona Bora, dove sorge la casa indipendente, essa è pari a circa
1.520 €/m² per case indipendenti in vendita.
Relativamente alla dinamica dei prezzi, possiamo dire che negli ultimi 6 mesi i prezzi medi in tutto il comune per case indipendenti in vendita sono
in deciso aumento (+7,64%).
NOVITÀ Il risultato che vedi dipende dai dati che siamo riusciti ad estrarre dall'annuncio: ottieni una stima più accuranta di questo immobile, inserendo dati più precisi.
N.B. L'Opinione di Caasa® è un servizio sperimentale realizzato tramite tecniche di Intelligenza Artificiale, fornito senza alcuna garanzia di correttezza e completezza. Leggi il disclaimer o segnalaci un problema.
IMMAGINI
IN SINTESI
PROPOSTO DA:
Le Note di Casa
DESCRIZIONE
con giardino con posto auto con garage con termocondizionamento con riscaldamento autonomo
In una zona residenziale tranquilla, nella frazione di Bora, immersa nel verde e con affaccio sulle colline, proponiamo una villetta centrale di ricercato design in un piccolo complesso di 9 unit. Progettata su due livelli, il piano terra contornato […]
