Valutazione immobiliare indipendente, accurata e gratuita
Casa indipendente in vendita a Meldola a 109.000 € (cod.633bd1a9)
Caasa non ha sufficienti informazioni per commentare la casa indipendente in vendita a Meldola - 633bd1a9.
Analisi immobiliare
I dati in posseso di Caasa per quest'immobile sono insufficienti, inaffidabili o contraddittori per proporre un'analisi attendibile.
Mercato immobiliare a Meldola
Per quanto riguarda più in generale il comune di Meldola, sono presenti al momento più di cento annunci per
case indipendenti in vendita (meno del 5% dell'intera provincia)
e il maggior numero di annunci per questa tipologia sono relativi alla zona di San Colombano.
Relativamente alla dinamica dei prezzi, possiamo dire che negli ultimi 6 mesi i prezzi medi in tutto il comune per case indipendenti in vendita sono
in sostanziale aumento (+5,83%).
NOVITÀ Il risultato che vedi dipende dai dati che siamo riusciti ad estrarre dall'annuncio: ottieni una stima più accuranta di questo immobile, inserendo dati più precisi.
N.B. L'Opinione di Caasa® è un servizio sperimentale realizzato tramite tecniche di Intelligenza Artificiale, fornito senza alcuna garanzia di correttezza e completezza. Leggi il disclaimer o segnalaci un problema.
IMMAGINI
IN SINTESI
DESCRIZIONE
con posto auto con garage
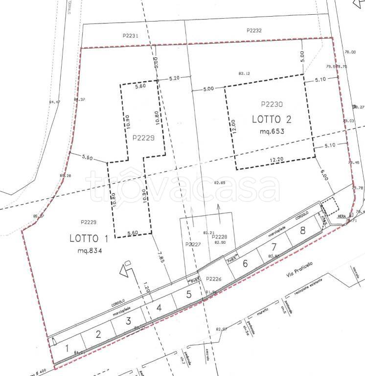
MELDOLA - ZONA RESIDENZIALE LOTTO 2 LOTTO EDIFICABILE GIA' URBANIZZATO SITO IN MELDOLA TRA VIA MICHELACCI E VIA PRATICELLO . A soli 200 m dal centro storico . In zona panoramica , quartiere residenziale privo di traffico. Superfice lotto 653 mq , metri edificabili 200 mq , più altri 200 mq di seminterrato massimo 1,5 fuori terra per garage e servizi . Soluzione ideale per la realizzazione di una villa indipendente o di una bifamiliare . Accanto al lotto 2 qui descritto proponiamo in vendita il lotto 1 , nel nostro sito troverete un annuncio dedicato . Sono già stati realizzati i posti auto in strada richiesti dal comune . - DISPONIBILE DA SUBITO - ZONA ESCLUSIVA E PANORAMICA

