Valutazione immobiliare indipendente, accurata e gratuita
Appartamento in vendita a Gatteo in zona Gatteo a Mare a 279.000 € (cod.6584cd12)
Caasa non ha sufficienti informazioni per commentare l'appartamento a Gatteo in zona Gatteo a Mare - 6584cd12.
Analisi immobiliare
I dati in posseso di Caasa per quest'immobile sono insufficienti, inaffidabili o contraddittori per proporre un'analisi attendibile.
Mercato immobiliare a Gatteo
Per quanto riguarda più in generale il comune di Gatteo, sono presenti al momento più di 150 annunci per
appartamenti in vendita (meno del 5% dell'intera provincia)
e il maggior numero di annunci per questa tipologia sono relativi proprio alla zona di Gatteo a Mare.
La richiesta media nella zona dove sorge l'appartamento (Gatteo a Mare) è pari a
3.230 €/m² e ne fa la più pregiata del comune .
Possiamo inoltre considerare che in tutto il comune negli ultimi 6 mesi, i prezzi per appartamenti in vendita sono
sostanzialmente stabili (-1,02%).
NOVITÀ Il risultato che vedi dipende dai dati che siamo riusciti ad estrarre dall'annuncio: ottieni una stima più accuranta di questo immobile, inserendo dati più precisi.
N.B. L'Opinione di Caasa® è un servizio sperimentale realizzato tramite tecniche di Intelligenza Artificiale, fornito senza alcuna garanzia di correttezza e completezza. Leggi il disclaimer o segnalaci un problema.
IMMAGINI
IN SINTESI
PROPOSTO DA:
Romagna Case
DESCRIZIONE
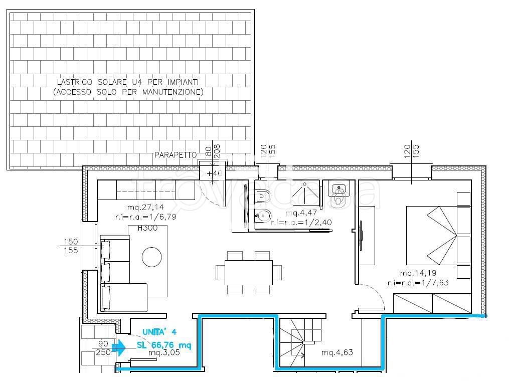
di nuova costruzione di nuova costruzione con terrazza di recente ristrutturazione con cucina abitabile
NUOVA REALIZZAZIONE CON TERRAZZO - GATTEO MARE In vendita a Gatteo Mare, un magnifico appartamento di nuova ristrutturazione, al passo con le tecnologie energetiche più avanzate e pronto per essere abitato nel 2026. La proprietà si estende su una superficie di circa 103 m², offrendo spazi ampi e luminosi. All'interno dell'immobile troviamo una confortevole zona giorno con cucina abitabile, perfetta per chi ama cucinare e ricevere ospiti. L'appartamento dispone di tre camere da letto; due situate sul piano principale e una deliziosa terza camera in mansarda dotata di un secondo bagno privato, garantendo così il massimo della privacy e del comfort. L'efficienza energetica è un punto di forza in questo appartamento, grazie al cappotto termico, ai pannelli fotovoltaici e l'assenza di gas, permettendo risparmi considerevoli sulle spese di energia e un minore impatto ambientale. Non perdere questa opportunità unica di vivere in un ambiente sostenibile e all'avanguardia nel confort. Contattaci per ulteriori informazioni o per organizzare una visita ANTONY: 3467243514 oppure manda un'e-mail: a.romanazzi@romagnacase.it e verrai ricontatto appena possibile

