Valutazione immobiliare indipendente, accurata e gratuita
L'Opinione di Caasa® per l'appartamento in vendita a Gambettola a 335.000 € (cod.65726e29)
Secondo Caasa, per l'appartamento in vendita a Gambettola, la richiesta di 335.000 € è leggermente vantaggiosa rispetto agli annunci simili.
Analisi immobiliare
L'appartamento, situato nella zona OMI D1, è proposto in vendita (da Impresa edile Medri Renzo & C. Snc) a
335.000 € per una
superficie commerciale di
128 m² e quindi ad un prezzo per metro quadrato pari a
2617 €/m²
.
Tale prezzo
è un po' più basso di quello stimato da Caasa per immobili in vendita simili per tipologia, caratteristiche, classe energetica e zona, che è compreso tra
2.791 €/m² e
2.962 €/m².
Presa in considerazione la posizione dell'appartamento si sono utilizzati in raffronto i valori medi nelle zone limitrofe . Ad affinare la stima ha contribuito anche la classe energetica (A+) oltre alla conoscenza dello stato dell'immobile (di nuova costruzione) e di alcune caratteristiche significative come il garage. Per questi motivi i valori accettabili per l'offerta costituiscono un intervallo relativamente limitato.
Mercato immobiliare a Gambettola
Per quanto riguarda più in generale il comune di Gambettola, sono presenti al momento più di cento annunci per
appartamenti in vendita (meno del 5% dell'intera provincia) .
Relativamente alla dinamica dei prezzi, possiamo dire che negli ultimi 6 mesi i prezzi medi in tutto il comune per appartamenti in vendita sono
in deciso aumento (+7,98%).
NOVITÀ Il risultato che vedi dipende dai dati che siamo riusciti ad estrarre dall'annuncio: ottieni una stima più accuranta di questo immobile, inserendo dati più precisi.
N.B. L'Opinione di Caasa® è un servizio sperimentale realizzato tramite tecniche di Intelligenza Artificiale, fornito senza alcuna garanzia di correttezza e completezza. Leggi il disclaimer o segnalaci un problema.
IMMAGINI
IN SINTESI
PROPOSTO DA:
Impresa edile Medri Renzo & C. Snc
Via luciano lama 414, Gambettola (FC)
DESCRIZIONE
di nuova costruzione con posto auto con garage con balcone con terrazza di nuova costruzione con angolo cottura
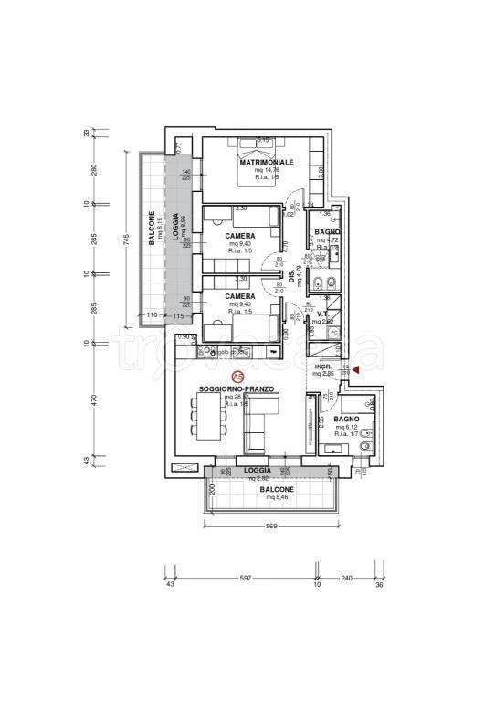
AMPIO QUADRILOCALE appartenente a un piccolo edificio in costruzione a Budrio di Cesena. L'appartamento è al piano primo, composto da ingresso, soggiorno-pranzo con angolo cottura, Tre camere da letto, un disimpegno, due bagni, una lavanderia, oltre a due grandi balconi. Compreso Garage coperto e posto auto all'interno della corte. L'immobile è dotato di impianto fotovoltaico sul tetto. CHIAMA SUBITO PER MAGGIORI INFO, per Ampia possibilità di personalizzazione

