Valutazione immobiliare indipendente, accurata e gratuita
L'Opinione di Caasa® per l'appartamento in vendita a Gambettola a 270.000 € (cod.65724f6c)
Secondo Caasa, per l'appartamento in vendita a Gambettola, la richiesta di 270.000 € è leggermente svantaggiosa rispetto agli annunci simili.
Analisi immobiliare
L'appartamento, situato nella zona OMI D1, è proposto in vendita (da Impresa edile Medri Renzo & C. Snc) a
270.000 € per una
superficie commerciale di
98 m² e quindi ad un prezzo per metro quadrato pari a
2755 €/m²
.
Questo valore
è un po' più alto di quello stimato da Caasa per immobili in vendita simili per tipologia, caratteristiche, classe energetica e zona, che è compreso tra
2.511 €/m² e
2.706 €/m².
Considerata la posizione dell'appartamento si sono utilizzati in raffronto i valori medi nelle zone limitrofe . Ad affinare la stima ha contribuito anche la classe energetica (A+) oltre alla conoscenza dello stato dell'immobile (di nuova costruzione) e di alcune caratteristiche significative come il garage. Per queste ragioni è possibile ottenere un intervallo di valori accettabili per l'offerta relativamente limitato.
Mercato immobiliare a Gambettola
Per quanto riguarda più in generale il comune di Gambettola, sono presenti al momento più di cento annunci per
appartamenti in vendita (meno del 5% dell'intera provincia) .
Per quanto riguarda la dinamica dei prezzi, negli ultimi 6 mesi i prezzi medi in tutto il comune per appartamenti in vendita sono
in deciso aumento (+7,98%).
NOVITÀ Il risultato che vedi dipende dai dati che siamo riusciti ad estrarre dall'annuncio: ottieni una stima più accuranta di questo immobile, inserendo dati più precisi.
N.B. L'Opinione di Caasa® è un servizio sperimentale realizzato tramite tecniche di Intelligenza Artificiale, fornito senza alcuna garanzia di correttezza e completezza. Leggi il disclaimer o segnalaci un problema.
IMMAGINI
IN SINTESI
PROPOSTO DA:
Impresa edile Medri Renzo & C. Snc
Via luciano lama 414, Gambettola (FC)
DESCRIZIONE
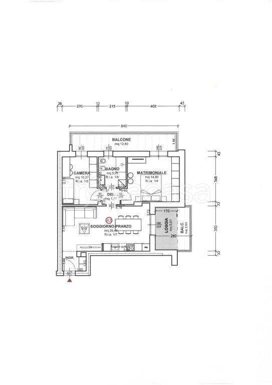
di nuova costruzione con posto auto con garage con balcone con terrazza di nuova costruzione con angolo cottura
GRAZIOSO TRILOCALE con orientamento Sud-Est, appartenente a un piccolo edificio in costruzione a Budrio di Cesena. L'appartamento è al piano primo composto da ingresso, soggiorno-pranzo con angolo cottura, Due camere da letto, un disimpegno, un bagno, oltre a due ampi balconi. Compreso di Garage coperto e posto auto al piano terra. L'immobile è dotato di impianto fotovoltaico sul tetto. CHIAMA SUBITO PER MAGGIORI INFO, per Ampia possibilità di personalizzazione


