Valutazione immobiliare indipendente, accurata e gratuita
Ufficio in affitto a Gambettola a 650 € mese (cod.64e8e143)
Caasa non ha sufficienti informazioni per commentare l'ufficio in affitto a Gambettola - 64e8e143.
Analisi immobiliare
I dati in posseso di Caasa per quest'immobile sono insufficienti, inaffidabili o contraddittori per proporre un'analisi attendibile.
Mercato immobiliare a Gambettola
Per quanto riguarda più in generale il comune di Gambettola, sono presenti al momento più di dieci annunci per
uffici in affitto (meno del 5% dell'intera provincia) .
NOVITÀ Il risultato che vedi dipende dai dati che siamo riusciti ad estrarre dall'annuncio: ottieni una stima più accuranta di questo immobile, inserendo dati più precisi.
N.B. L'Opinione di Caasa® è un servizio sperimentale realizzato tramite tecniche di Intelligenza Artificiale, fornito senza alcuna garanzia di correttezza e completezza. Leggi il disclaimer o segnalaci un problema.
IMMAGINI
IN SINTESI
PROPOSTO DA:
Affiliato Tecnocasa: STUDIO MYRICAE S.R.L.
DESCRIZIONE
di recente ristrutturazione con termocondizionamento di nuova costruzione con arredamento di recente ristrutturazione
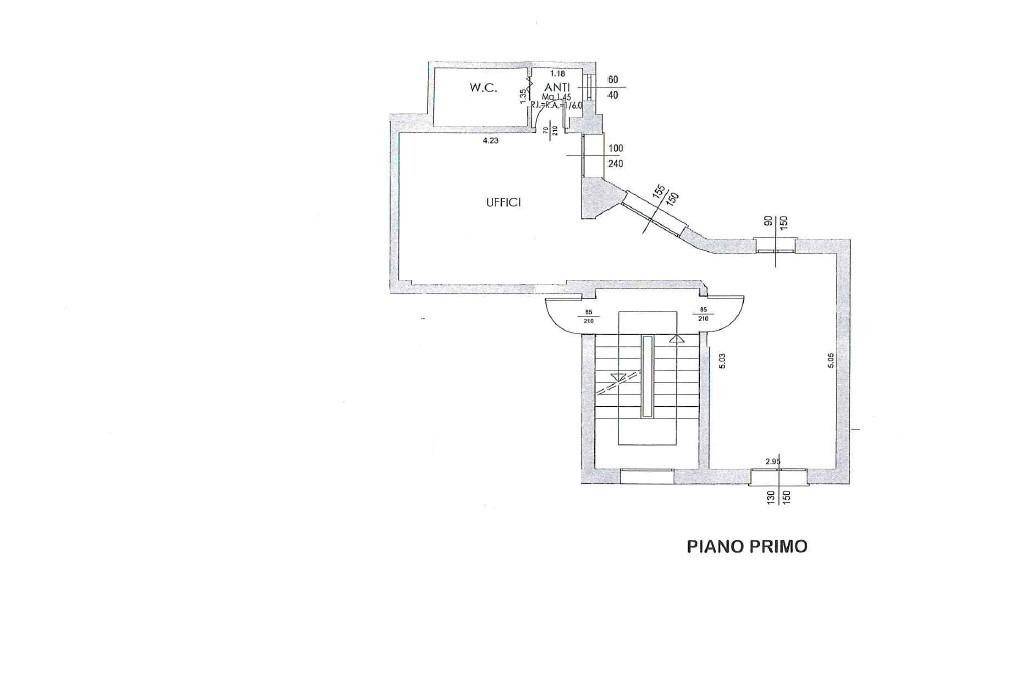
GAMBETTOLA Proponiamo in locazione un ufficio di 44 mq, situato al primo piano. L'immobile è stato ristrutturato nel 2025, garantendo così un ambiente moderno e funzionale. L'ufficio, accessibile tramite scale, è composto da due locali ed un bagno con doccia. L'immobile è dotato di impianto di riscaldamento e aria condizionata. L'ufficio dispone inoltre di tapparelle elettriche, allarme e porta blindata. La posizione centrale offre facile accesso ai principali servizi e trasporti pubblici, rendendolo una scelta strategica per chi desidera operare in un contesto dinamico. La ristrutturazione in corso prevede l'adeguamento degli impianti e l'ottimizzazione degli spazi, assicurando comfort e praticità. Questo ufficio rappresenta un'opportunità interessante per chi cerca una soluzione versatile e ben collegata nel comune di Gambettola. Le stanze arredate sono state prodotte con intelligenza artificiale. Per maggiori informazioni contatta il numero dell'ufficio 0541.454488 o manda una mail all'indirizzo fohrt@tecnocasa.it


