Valutazione immobiliare indipendente, accurata e gratuita
Casa indipendente in vendita a Forlimpopoli a 359.000 € (cod.652120b5)
Caasa non ha sufficienti informazioni per commentare la casa indipendente in vendita a Forlimpopoli - 652120b5.
Analisi immobiliare
I dati in posseso di Caasa per quest'immobile sono insufficienti, inaffidabili o contraddittori per proporre un'analisi attendibile.
Mercato immobiliare a Forlimpopoli
Per quanto riguarda più in generale il comune di Forlimpopoli, sono presenti al momento più di cento annunci per
case indipendenti in vendita (meno del 5% dell'intera provincia) .
Relativamente alla dinamica dei prezzi, possiamo dire che negli ultimi 6 mesi i prezzi medi in tutto il comune per case indipendenti in vendita sono
in forte aumento (+12,59%).
NOVITÀ Il risultato che vedi dipende dai dati che siamo riusciti ad estrarre dall'annuncio: ottieni una stima più accuranta di questo immobile, inserendo dati più precisi.
N.B. L'Opinione di Caasa® è un servizio sperimentale realizzato tramite tecniche di Intelligenza Artificiale, fornito senza alcuna garanzia di correttezza e completezza. Leggi il disclaimer o segnalaci un problema.
IMMAGINI
IN SINTESI
PROPOSTO DA:
IMMOBILI CAPPELLI & IMMOBILI CAPPELLI MARE
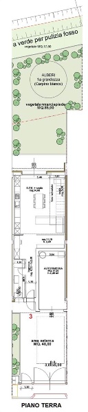
DESCRIZIONE
con posto auto con garage con giardino con terrazza con termocondizionamento
Nel suggestivo contesto della campagna Forlimpopolese, sorge a Sant'Andrea, un'oasi di serenità immersa nella natura e circondata dal verde circostante. Qui, in un ambiente armonioso e a breve distanza dai principali servizi del paese, prende vita un nuovo quartiere residenziale interamente concepito con criteri di bioedilizia. Ci troviamo davanti ad un progetto per una villa a schiera, libera su due lati, inserita in una graziosa quadrifamiliare e arricchita da un giardino privato di circa 130 metri quadrati. L'abitazione si sviluppa su due livelli: al piano terra ci accoglie una luminosa zona living di oltre 35 metri quadrati, un bagno finestrato e un ampio garage. Salendo dalla scala interna, si accede al piano superiore, dove è situata la zona notte. Qui troviamo una camera matrimoniale con accesso diretto alla loggia privata, una camera singola e una camera doppia, collegate da una seconda loggia e un comodo bagno di servizio al piano. L'immobile sarà realizzato con tecniche avanzate di bioedilizia, caratterizzate da un'elevata efficienza energetica e mirate al conseguimento della Classe A. Sarà dotato di impianto fotovoltaico da 5,5 kWp, sistema meccanizzato di riscaldamento e raffrescamento, pompa di calore per la produzione di acqua calda, infissi in alluminio con taglio termico e vetrocamera per un'ottimale coibentazione termo-acustica e un tetto in latero-cemento con coibentazione e impermeabilizzazione. Un'opportunità ideale per coloro che desiderano una soluzione abitativa confortevole, elegante e moderna, con ampi spazi sia interni che esterni, immersi nella tranquillità e nel verde del parco circostante. Vuoi davvero arrivare prima degli altri? Alcuni immobili selezionati vengono spoilerati in anteprima assoluta fino a 30 giorni prima della pubblicazione sui portali immobiliari. Solo chi ci segue sui social ha accesso a queste opportunità riservate. Non rischiare di perderti la casa giusta al momento giusto. Segui ora @immobili_cappelli_forlimpopoli su Instagram e resta sempre un passo avant[…]





