Valutazione immobiliare indipendente, accurata e gratuita
Casa indipendente in vendita a Forlimpopoli a 129.000 € (cod.64f6b563)
Caasa non ha sufficienti informazioni per commentare la casa indipendente in vendita a Forlimpopoli - 64f6b563.
	Analisi immobiliare
	
	I dati in posseso di Caasa per quest'immobile sono insufficienti, inaffidabili o contraddittori per proporre un'analisi attendibile.
	
	Mercato immobiliare a Forlimpopoli
	
	Per quanto riguarda più in generale il comune di Forlimpopoli, sono presenti al momento più di cento annunci per 
		case indipendenti in vendita (meno del 5% dell'intera provincia) .
	
	
	
	La dinamica dei prezzi in tutto il comune mostra che negli ultimi 6 mesi, i prezzi per case indipendenti in vendita sono 
		in forte aumento (+12,59%).
	
	
	
NOVITÀ Il risultato che vedi dipende dai dati che siamo riusciti ad estrarre dall'annuncio: ottieni una stima più accuranta di questo immobile, inserendo dati più precisi.
N.B. L'Opinione di Caasa® è un servizio sperimentale realizzato tramite tecniche di Intelligenza Artificiale, fornito senza alcuna garanzia di correttezza e completezza. Leggi il disclaimer o segnalaci un problema.
IMMAGINI
IN SINTESI
DESCRIZIONE
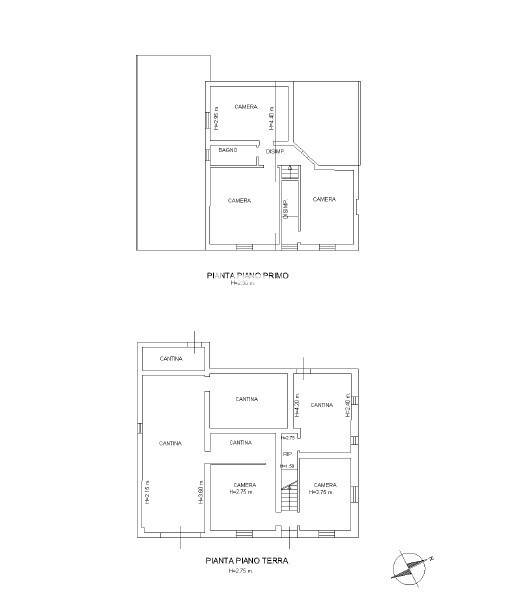
da ristrutturare con posto auto con garage con cantina da ristrutturare
Forlimpopoli – Campagna di San Leonardo In vendita casa indipendente storica romagnola, disposta su due livelli, libera su quattro lati e circondata da terreno agricolo. •Superficie catastale: 173 mq •Distribuzione attuale (indicativa): al piano terr […]
 
                               
                               
                               
                               
                              